Загалом:

Оренда офісу 525,10 м2 з ремонтом в БЦ Гулівер
Адреса: площа Спортивна 1а. Печерський район.
Бізнес центр розташований поруч з 3-ма станціями метро: Палац Спорту, Олімпійська, Площа Українських героїв).
- 7 поверх з 33 (12 високошвидкісних smart-ліфтів);
- охоронна та пожежна сигналізація;
- власна котельня;
- централізоване кондиціонування;
- ремонт;
- паркінг.
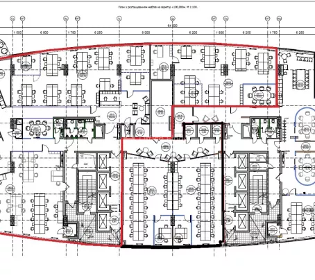
- Готовий до роботи комфортний офіс для великої команди з висотою до стелі 3,6 м (Оpen Space + 9 кабінетів), зона кухні, рецепція, санвузли.
- Приміщення оснащене всіма необхідними комунікаціями, системою клімат-контролю та вентиляції зі 100% свіжого повітря, спринклерна система пожежогасіння від Mercor (Польща) і Siron (Нідерланди), інтелектуальна автоматизована система контролю і управління будівлею,
- У БЦ є власна підстанція і декілька дизель-генераторів 1 мгВт категорія 1+, сучасна система безпеки усуває можливість несанкціонованого проникнення та 3 рівневий підземний паркінг з цілодобовою охороною.
Комерційні умови:
- Ціна оренди $22м2 додатково ПДВ.
- Експлуатаційні затрати $8,5м2 додатково ПДВ.
- Загальна вартість оренди враховуючи БОМА, та OPEX: 19 222$ з ПДВ.