Загалом:

Оренда офісу представницького рівня у БЦ GULLIVER
адреса: Спортивна площа, 1-а, вежа А.
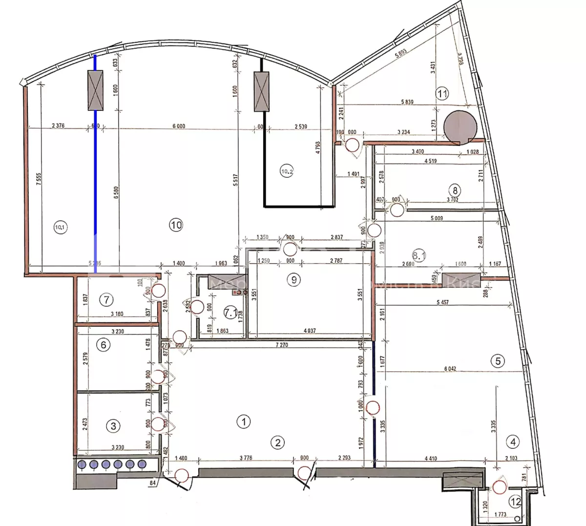
- Площа офісу – 349,53м2 корисна, 310,20м2, що орендується, коефіцієнт Бома 12%.
- Планування – 1 залopen space, 6 окремих кабінети, 2 переговорні кімнати, хол ресепшен, кухня.
- Поверх – 18/33.
- Офіс пропонується з ремонтом після орендаря.
- Приміщення обладнане системою припливно-витяжної вентиляції, кондиціюванням, СКД, пожежною/охоронною сигналізацією.
- Доступ 24/7.
Комерційні умови:
- орендна ставка 23$/м2 додатково ПДВ;
- експлуатаційні 8,5$/м2 додатково ПДВ;
- загальна вартість 13 211$/місяць з OPEX та ПДВ.
- додаткові платежі – комунальні за лічильниками.
- Підземний паркінг – 12 000грн/місяць