Перейти к основному содержанию
Район:
Голосеевский
Количество санузлов:
2
Ремонт:
офисный ремонт
Этажность
13
Площадь
300 м²
Этаж:
7
Налогообложение:
Без НДС
Цена м²
$ 16,66

Итого:

$ 16,66
/ м²
$ 4 998
/ месяц
$ 59 976
/ год

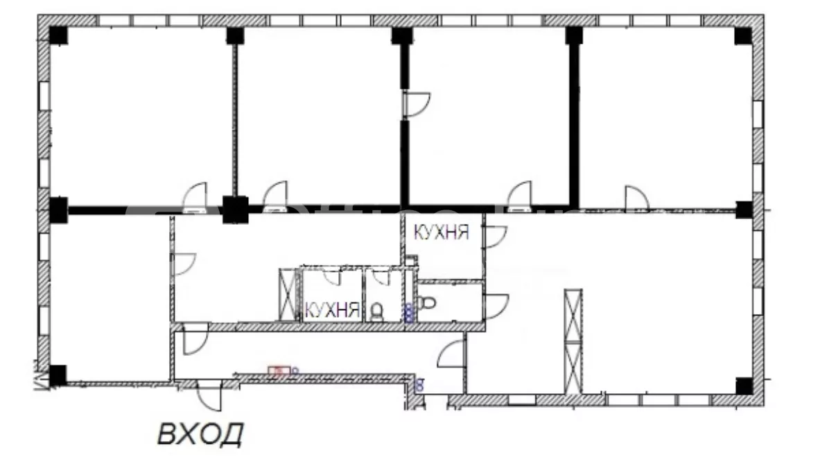
Аренда офиса в центре Киева 300 м² в БЦ «Максим»
ул. Антоновича, 33В, метро Олимпийская

Предлагается в аренду просторный и презентабельный офис площадью 300 м² в современном бизнес-центре «Максим». Локация – сердце Печерская, рядом со ст.м. Олимпийский.

Характеристики помещения:

  • Офис после качественного ремонта
  • Пол: плитка/ламинат
  • Стены: покраска
  • Установленные кондиционеры
  • Высота потолков - 3 м.
  • Пропускная система, охрана 24/7

Планирование:

  • 2 больших open space (ориентировочно по 80 м² каждый)
  • 3 отдельные просторные кабинеты
  • Ресепшен
  • 2 кухни
  • 2 санузла

Помещение подходит для IT-команд, консалтинговых, юридических, финансовых компаний и бизнесов, которым важен комфорт и привлекательный уровень офиса.

Стоимость аренды: 5 000 у.е./мес (ФЛП 3 группа)
Паркинг: 1 место в подземном паркинге $150месяц

Метро
Олимпийская
450 метров, 6 мин ходьбы
Площадь Украинских Героев
700 метров, 10 мин ходьбы
Инфраструктура
Банкомат, отделение банка
Отделение Новой Почты (НП)
Кафе, ресторан
Спорт зал

Ещё офисы в этом здании

Метро
Олимпийская
450 метров, 6 мин ходьбы
Площадь Украинских Героев
700 метров, 10 мин ходьбы
Площадь
240.00 м²
Этаж
11
Цена
$ 27
 Добавить в избранное
 

Аренда элитного офиса 240 м² с авторским ремонтом на ул. Антоновича, 33В
(классический английский стиль, есть генератор, паркинг)

Метро
Олимпийская
450 метров, 6 мин ходьбы
Площадь Украинских Героев
700 метров, 10 мин ходьбы
Площадь
614.00 м²
Этаж
10
Цена
$ 16
 Добавить в избранное
 

Аренда офисов в БЦ "Максим", ул. Антоновича (Горького), 33в

Метро
Олимпийская
450 метров, 6 мин ходьбы
Площадь Украинских Героев
700 метров, 10 мин ходьбы
Площадь
266.00 м²
Этаж
4
Цена
$ 12
 Добавить в избранное
 

Аренда офиса 266 м² | БЦ "Максим", ул. Антоновича (Горького), 33
Предлагается в аренду отдельный офисный блок площадью 266 м² в бизнес-центре "Максим",

Метро
Олимпийская
450 метров, 6 мин ходьбы
Площадь Украинских Героев
700 метров, 10 мин ходьбы
Площадь
367.00 м²
Этаж
11
Цена
$ 15
 Добавить в избранное
 

Аренда офиса: 367,4 м². БЦ "Максим", ул. Антоновича 33в

Метро
Олимпийская
450 метров, 6 мин ходьбы
Площадь Украинских Героев
700 метров, 10 мин ходьбы
Площадь
146.00 м²
Этаж
10
Цена
$ 10
 Добавить в избранное
 

Аренда офисного помещения площадью 146 кв.м в бизнес-центре Максим по адресу улица Антоновича 33В.

Метро
Олимпийская
450 метров, 6 мин ходьбы
Площадь Украинских Героев
700 метров, 10 мин ходьбы
Площадь
400.00 м²
Этаж
3
Цена
$ 10
 Добавить в избранное
 

Аренда офисного помещения площадью 400 кв.м в бизнес-центре Максим по адресу улица Антоновича 33В.

Метро
Олимпийская
450 метров, 6 мин ходьбы
Площадь Украинских Героев
700 метров, 10 мин ходьбы
Площадь
152.80 м²
Этаж
4
Цена
Сдано
 Добавить в избранное
 

Аренда офиса 152,8 м² в бизнес-центре «Максим», ул. Антоновича, 33В.

Метро
Олимпийская
450 метров, 6 мин ходьбы
Площадь Украинских Героев
700 метров, 10 мин ходьбы
Площадь
255.00 м²
Этаж
1
Цена
Сдано
 Добавить в избранное
 

Аренда готового офиса 255м2. Бизнес-центр Максим.
Киев, ул. Антоновича (Горького), 33В.
Район: Голосеевский центр.

Метро
Олимпийская
450 метров, 6 мин ходьбы
Площадь Украинских Героев
700 метров, 10 мин ходьбы
Площадь
154.00 м²
Этаж
4
Цена
Сдано
 Добавить в избранное
 

Аренда офиса площадью 154 кв.м в БЦ Максим (ул. Антоновича, 33В). Помещение состоит из зоны ресепшн, открытого зала Open space, 2-х отдельных кабинетов, кухни и двух санузлов. Хорошее состояние.

Метро
Олимпийская
450 метров, 6 мин ходьбы
Площадь Украинских Героев
700 метров, 10 мин ходьбы
Площадь
144.00 м²
Этаж
6
Цена
Сдано
 Добавить в избранное
 

Аренда офиса площадью 144 кв.м. Новый, современный БЦ Максим (ул. Антоновича, 33В). Помещение состоит из: зоны ресепшна, 3-х отдельных кабинетов, кухни, санузла. Хорошее состояние.

Метро
Олимпийская
450 метров, 6 мин ходьбы
Площадь Украинских Героев
700 метров, 10 мин ходьбы
Площадь
284.00 м²
Этаж
6
Цена
Сдано
 Добавить в избранное
 

Аренда офиса 284 кв. БЦ Максим.

Метро
Олимпийская
450 метров, 6 мин ходьбы
Площадь Украинских Героев
700 метров, 10 мин ходьбы
Площадь
560.00 м²
Этаж
5
Цена
Сдано
 Добавить в избранное
 

Аренда офиса 560 кв.м, в центре Киева. БЦ Максим.

Метро
Олимпийская
450 метров, 6 мин ходьбы
Площадь Украинских Героев
700 метров, 10 мин ходьбы
Площадь
149.00 м²
Этаж
2
Цена
Сдано
 Добавить в избранное
 

Аренда офиса 149м2. БЦ Максим.

Метро
Олимпийская
450 метров, 6 мин ходьбы
Площадь Украинских Героев
700 метров, 10 мин ходьбы
Площадь
140.00 м²
Этаж
6
Цена
Сдано
 Добавить в избранное
 

Аренда офиса 138 кв.м, ул. Антоновича, 33В станция метро Олимпийская 5 минут пешком.

Метро
Олимпийская
450 метров, 6 мин ходьбы
Площадь Украинских Героев
700 метров, 10 мин ходьбы
Площадь
144.00 м²
Этаж
8
Цена
Сдано
 Добавить в избранное
 

Аренда офиса площадью 144 кв.м. Новый, современный БЦ Максим (ул. Антоновича, 33В). Помещение состоит из: зоны ресепшн, 3-х раздельных кабинетов, кухни, санузла. Хорошое состояние.

Метро
Олимпийская
450 метров, 6 мин ходьбы
Площадь Украинских Героев
700 метров, 10 мин ходьбы
Площадь
285.00 м²
Этаж
6
Цена
Сдано
 Добавить в избранное
 

Аренда офиса в центре Киева, 285 кв.м, БЦ Максим. ул. Горького 33-в. ст.м Олимпийская. Офис презентабельного уровня, ремонт, пол плитка/ламинат, стены покраска, кондиционеры.

Бизнес-центры рядом

Метро
Олимпийская
450 метров, 6 мин ходьбы
Площадь Украинских Героев
700 метров, 10 мин ходьбы
Площадь: 300.00 м²
Этаж: 7
Цена: $ 16,66
Площадь: 240.00 м²
Этаж: 11
Цена: $ 27
Площадь: 614.00 м²
Этаж: 10
Цена: $ 16
Площадь: 152.80 м²
Этаж: 4
Цена: $ 15
Все площади
Метро
Олимпийская
-🚶3 мин - 300м
Площадь Украинских Героев
🚶10- мин 840 м
Дворец спорта
🚶19 мин- 1,5 км
Площадь: 300.00 м²
Этаж: 7
Цена: $ 15
Площадь: 303.00 м²
Этаж: 6
Цена: $ 13
Площадь: 440.00 м²
Этаж: 5
Цена: $ 15