Перейти к основному содержанию
Район:
Шевченковский
Количество санузлов:
3
Ремонт:
Категория В
Этажность
7
Площадь
414 м²
Этаж:
2
Налогообложение:
Включая НДС
Цена м²
$ 26,4

Итого:

$ 26,4
/ м²
$ 10 929,6
/ месяц
$ 131 155,2
/ год

Аренда офиса 414 м² в бизнес-центре «София» | Класс А, центр Киева
Предлагается в аренду просторное офисное помещение общей площадью 414 м² в современном бизнес-центре «София», принадлежащем офисам класса А и расположенному в престижном районе исторического центра Киева — рядом с Софийской площадью и в пешей доступности от станций метро «Золотые Ворота» и «Майдан».
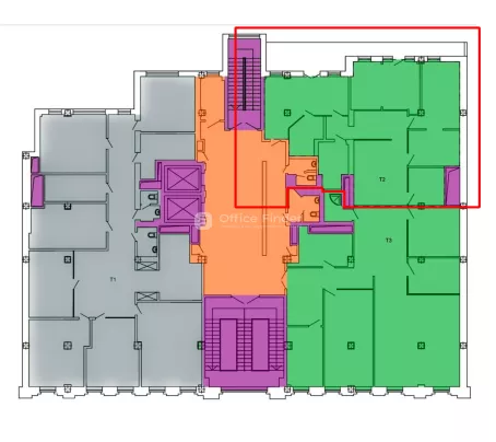
Офис расположен на втором этаже, хорошо зонированный и подходит для компании с разнообразными бизнес-процессами. Полезная площадь помещения составляет 308,8 кв. В плане офис выделен зеленым цветом.
Функциональное планирование состоит из двух отдельных зон, что позволяет организовать эффективную работу различных департаментов.
Первая часть помещения включает:

  • четыре отдельных кабинетов;
  • кухню с выходом на просторный балкон с видом во внутренний двор;
  • открытое пространство;
  • комнаты для инвентаря;
  • санузел.

Вторая часть помещения включает:

  • зона open-space для командной работы;
  • четыре отдельных кабинетов;
  • серверную;
  • кухню оборудована посудомоечной машиной;
  • дополнительный санузел;
  • отдельный вход в помещение.

Технические и дизайнерские особенности
•  Кабинетная система с зонированием с помощью стеклянных перегородок
• Напольное покрытие — комбинировано ковровое и ламинат.
• Частично установлена ​​встроенная мебель.
• Окна офиса выходят на переулок Рыльский, площадь и во внутренний двор, обеспечивая естественное освещение в течение дня.
Коммерческие условия
•  Арендная ставка: 16 USD/м² (без НДС)
•  OPEX: 6 USD/м² (без НДС)
Это помещение идеально подходит для компаний, которые ищут просторный, функциональный и репрезентативный офис в самом сердце Киева, с возможностью гибкой организации рабочего пространства.

Метро
Золотые ворота
🚶9- мин., 650 м.
Майдан Незалежности
🚶12- мин​., 900 м.
Инфраструктура
Банкомат, отделение банка
Отделение Новой Почты (НП)
Отель
Супермаркет
Химчистка
Салон красоты
Кафе, ресторан
Спорт зал

Ещё офисы в этом здании

Метро
Золотые ворота
🚶9- мин., 650 м.
Майдан Незалежности
🚶12- мин​., 900 м.
Площадь
420.00 м²
Этаж
4
Цена
$ 25
 Добавить в избранное
 

Аренда офиса в центре Киева – БЦ София, класса A (Рыльский переулок, 6).

Метро
Золотые ворота
🚶9- мин., 650 м.
Майдан Незалежности
🚶12- мин​., 900 м.
Площадь
349.00 м²
Этаж
4
Цена
$ 23
 Добавить в избранное
 

Аренда офиса в центре Киева – БЦ София, класса A (Рыльский переулок, 6).

Метро
Золотые ворота
🚶9- мин., 650 м.
Майдан Незалежности
🚶12- мин​., 900 м.
Площадь
770.00 м²
Этаж
4
Цена
$ 23
 Добавить в избранное
 

Аренда офиса в бизнес-центре класса A «SOPHIA Business Center»
Предлагается в аренду современное офисное помещение премиум-класса по адресу: Рильский переулок, 6.

Метро
Золотые ворота
🚶9- мин., 650 м.
Майдан Незалежности
🚶12- мин​., 900 м.
Площадь
178.00 м²
Этаж
2
Цена
$ 26,4
 Добавить в избранное
 

Аренда офиса 178 м² в бизнес-центре «София», класс А | Центр Киева

Метро
Золотые ворота
🚶9- мин., 650 м.
Майдан Незалежности
🚶12- мин​., 900 м.
Площадь
237.00 м²
Этаж
2
Цена
Сдано
 Добавить в избранное
 

Аренда офиса 237 м² в бизнес-центре «София», класс А | Центр Киева

Метро
Золотые ворота
🚶9- мин., 650 м.
Майдан Незалежности
🚶12- мин​., 900 м.
Площадь
188.00 м²
Этаж
3
Цена
Сдано
 Добавить в избранное
 

Офисное помещение в бизнес-центре "София" - современном бизнес-центре класса А, расположенном в самом сердце города, возле Софийской площади, Рильский переулок 6.

Метро
Золотые ворота
🚶9- мин., 650 м.
Майдан Незалежности
🚶12- мин​., 900 м.
Площадь
240.00 м²
Этаж
3
Цена
Сдано
 Добавить в избранное
 

Офисное помещение в бизнес-центре "София" — современном бизнес-центре класса А, расположенном в самом сердце города, у Софийской площадей, Рильский переулок 6.

Метро
Золотые ворота
🚶9- мин., 650 м.
Майдан Незалежности
🚶12- мин​., 900 м.
Площадь
428.00 м²
Этаж
3
Цена
Сдано
 Добавить в избранное
 

Офисное помещение в бизнес-центре "София" - современном бизнес-центре класса А, расположенном в самом сердце города, у Софийской площади.

Метро
Золотые ворота
🚶9- мин., 650 м.
Майдан Незалежности
🚶12- мин​., 900 м.
Площадь
153.00 м²
Этаж
6
Цена
Сдано
 Добавить в избранное
 

Предлагаем в аренду стильное офисное помещение в бизнес-центре "София" - элитном бизнес-центре класса А в самом сердце Киева.

Бизнес-центры рядом

Метро
Золотые ворота
🚶9- мин., 650 м.
Майдан Незалежности
🚶12- мин​., 900 м.
Площадь: 420.00 м²
Этаж: 4
Цена: $ 25
Площадь: 349.00 м²
Этаж: 4
Цена: $ 23
Площадь: 770.00 м²
Этаж: 4
Цена: $ 23
Площадь: 237.00 м²
Этаж: 2
Цена: $ 26,4
Все площади
Метро
Золотые ворота
🚶9 мин - 800 м
Майдан Незалежности
🚶15 мин​ - 1.5 км
Площадь: 770.00 м²
Этаж: 4
Цена: $ 25
Площадь: 112.00 м²
Этаж: 4
Цена: $ 27
Площадь: 192.00 м²
Этаж: 4
Цена: $ 27
Площадь: 68.60 м²
Этаж: 4
Цена: $ 25
Все площади
Метро
Майдан Незалежности
-🚶15 мин 〰️ 1,5 км
Золотые ворота
-🚶13 мин 〰️ 1 км
Почтовая площадь
-🚶18 мин 〰️ 1,5 км
Площадь: 206.00 м²
Этаж: 7
Цена: $ 22
Площадь: 72.00 м²
Этаж: 7
Цена: $ 21,6
Бизнес центр «Панорама» находится в исторической части столицы.