Перейти к основному содержанию
Район:
Шевченковский
Количество санузлов:
на этаже
Ремонт:
офисный ремонт
Этажность
17
Площадь
126 м²
Этаж:
2
Налогообложение:
Включая НДС
Цена м²
$ 34,2

Итого:

$ 34,2
/ м²
$ 4 309,2
/ месяц
$ 51 710,4
/ год

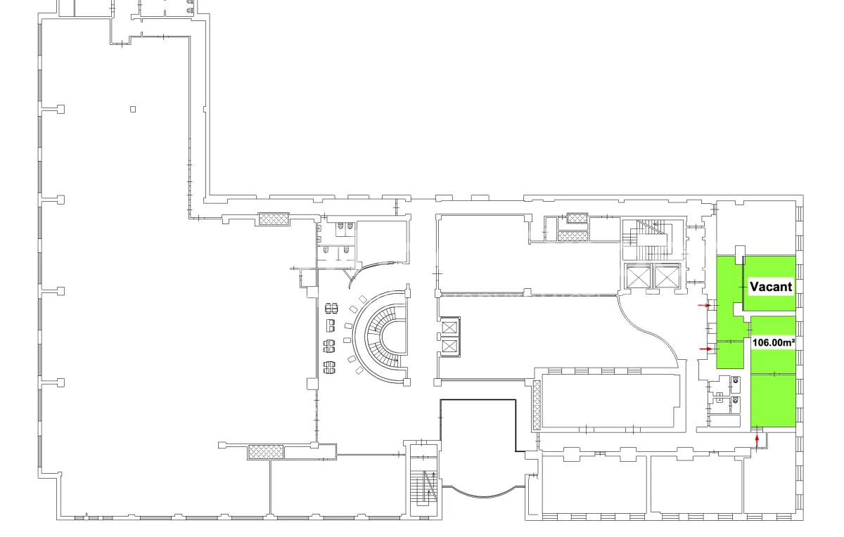
Аренда офисного помещения 126,29м2 в БЦ «Леонардо», центр Киева
Адрес: ¦ул. Богдана Хмельницкого, 19-21. Шевченковский район.

  • Сдаётся в аренду полностью готовое к использованию офисное помещение в престижном бизнес-центре «Леонардо» (1 очередь).
  • Офис расположен на 2 этаже. Окна выходят на ул. Б. Хмельницкий.
  • Общая площадь: 126,29м² (учитывая коэффициент BOMA – 1.19%).
  • Полезная площадь: 106м.
  • Планировка: 4 кабинета, холл ресепшен. Фасадные окна.
  • Локация: центр исторического Киева - перекресток ул. Богдана Хмельницкого и Владимирской.
  • 5 минут пешком до станций метро Театральная и Золотые Ворота.
  • Удобное сообщение с ключевыми транспортными маршрутами города.

Инфраструктура и техническое оснащение:

  • 24/7 охрана и контроль доступа.
  • Два независимых ввода электропитания.
  • Дизельный генератор для полной энергонезависимости.
  • Подземный паркинг + наземная парковка.
  • Безбарьерный доступ в помещения.
  • Укрытие в пределах строения.
  • Богатая внутренняя инфраструктура: рестораны, кафе, банки, магазины.

Финансовые условия:

  • Арендная ставка: $21/м² (без НДС).
  • Операционные расходы (OPEX): $7.5/м² (без НДС).
  • Общая стоимость аренды составляет: $4 309 в месяц.
Метро
Театральная
🚶5 мин. 〰️ 400 метров
Золотые ворота
🚶6 мин. 〰️ 650 метров
Университет
🚶10 мин. 〰️ 800 метров
Инфраструктура
Банкомат, отделение банка
Отделение Новой Почты (НП)
Отель
Супермаркет
Химчистка
Салон красоты
Кафе, ресторан
Спорт зал

Ещё офисы в этом здании

Метро
Театральная
🚶5 мин. 〰️ 400 метров
Золотые ворота
🚶6 мин. 〰️ 650 метров
Университет
🚶10 мин. 〰️ 800 метров
Площадь
511.00 м²
Этаж
8
Цена
$ 41,4
 Добавить в избранное
 

БЦ Леонардо (1 очередь)
Сдаем в аренду премиум офис в историческом центре Киева в бизнес центре класса А.

Метро
Театральная
🚶5 мин. 〰️ 400 метров
Золотые ворота
🚶6 мин. 〰️ 650 метров
Университет
🚶10 мин. 〰️ 800 метров
Площадь
270.00 м²
Этаж
10
Цена
$ 37,8
 Добавить в избранное
 

Предлагается в аренду современный офис в престижном бизнес-центре класса А БЦ Леонардо, расположенном в самом сердце деловой и культурной жизни Киева по адресу ул. Богдана Хмельницкого, 19/21а.

Метро
Театральная
🚶5 мин. 〰️ 400 метров
Золотые ворота
🚶6 мин. 〰️ 650 метров
Университет
🚶10 мин. 〰️ 800 метров
Площадь
573.00 м²
Этаж
10
Цена
$ 35,4
 Добавить в избранное
 

Аренда офиса в центре Киева с генератором ул. Б. Хмельницкого, 17/52А, ст. м. Золотые Ворота/Театральная.

Метро
Театральная
🚶5 мин. 〰️ 400 метров
Золотые ворота
🚶6 мин. 〰️ 650 метров
Университет
🚶10 мин. 〰️ 800 метров
Площадь
586.00 м²
Этаж
15
Цена
$ 25
 Добавить в избранное
 

Сдается в аренду представительский офис в современном бизнес-центре «Leonardo» – одном из лучших офисных комплексов класса А+ в центральной части Киева. Здание находится по адресу ул.

Метро
Театральная
🚶5 мин. 〰️ 400 метров
Золотые ворота
🚶6 мин. 〰️ 650 метров
Университет
🚶10 мин. 〰️ 800 метров
Площадь
155.00 м²
Этаж
7
Цена
$ 34,2
 Добавить в избранное
 

Аренда офиса 155м2 в БЦ «Леонардо», центр Киева
Адрес: ул. Богдана Хмельницкого, 19-21. Шевченковский район.

Метро
Театральная
🚶5 мин. 〰️ 400 метров
Золотые ворота
🚶6 мин. 〰️ 650 метров
Университет
🚶10 мин. 〰️ 800 метров
Площадь
72.00 м²
Этаж
6
Цена
$ 32,25
 Добавить в избранное
 

Аренда офиса 72м2 в БЦ «Леонардо», центр Киева
Адрес: ул. Богдана Хмельницкого, 19-21. Шевченковский район.

Метро
Театральная
🚶5 мин. 〰️ 400 метров
Золотые ворота
🚶6 мин. 〰️ 650 метров
Университет
🚶10 мин. 〰️ 800 метров
Площадь
36.00 м²
Этаж
6
Цена
$ 34
 Добавить в избранное
 

Аренда офиса 36м2 в БЦ «Леонардо», центр Киева
Адрес: ул. Богдана Хмельницкого, 19-21. Шевченковский район.

Метро
Театральная
🚶5 мин. 〰️ 400 метров
Золотые ворота
🚶6 мин. 〰️ 650 метров
Университет
🚶10 мин. 〰️ 800 метров
Площадь
196.00 м²
Этаж
5
Цена
$ 33
 Добавить в избранное
 

Аренда офиса 196м2 в БЦ «Леонардо», центр Киева
Адрес: ул. Богдана Хмельницкого, 19-21. Шевченковский район.

Метро
Театральная
🚶5 мин. 〰️ 400 метров
Золотые ворота
🚶6 мин. 〰️ 650 метров
Университет
🚶10 мин. 〰️ 800 метров
Площадь
133.00 м²
Этаж
5
Цена
$ 27
 Добавить в избранное
 

Аренда офиса 133м2 в БЦ «Леонардо», центр Киева
Адрес: ул. Богдана Хмельницкого, 19-21. Шевченковский район.

Метро
Театральная
🚶5 мин. 〰️ 400 метров
Золотые ворота
🚶6 мин. 〰️ 650 метров
Университет
🚶10 мин. 〰️ 800 метров
Площадь
339.00 м²
Этаж
4
Цена
$ 30,6
 Добавить в избранное
 

Аренда офиса 339м2 в БЦ «Леонардо», центр Киева
Адрес: ул. Богдана Хмельницкого, 19-21. Шевченковский район.

Метро
Театральная
🚶5 мин. 〰️ 400 метров
Золотые ворота
🚶6 мин. 〰️ 650 метров
Университет
🚶10 мин. 〰️ 800 метров
Площадь
131.00 м²
Этаж
4
Цена
$ 27
 Добавить в избранное
 

Аренда офиса 131м2 в БЦ «Леонардо», центр Киева (1 очередь)
Адрес: ул. Богдана Хмельницкого, 19-21.

Метро
Театральная
🚶5 мин. 〰️ 400 метров
Золотые ворота
🚶6 мин. 〰️ 650 метров
Университет
🚶10 мин. 〰️ 800 метров
Площадь
405.00 м²
Этаж
2
Цена
$ 27
 Добавить в избранное
 

Аренда конференц-зала 405м2 в БЦ «Леонардо», центр Киева.
Адрес: ¦ул. Богдана Хмельницкого, 19-21. Шевченковский район.

Метро
Театральная
🚶5 мин. 〰️ 400 метров
Золотые ворота
🚶6 мин. 〰️ 650 метров
Университет
🚶10 мин. 〰️ 800 метров
Площадь
1904.00 м²
Этаж
5
Цена
$ 27
 Добавить в избранное
 

Предлагается в аренду просторный офис площадью 1904 м² в престижном бизнес-центре «Леонардо», расположенном в самом сердце столицы – на пересечении улиц Богдана Хмельницкого и Владимирской.

Метро
Театральная
🚶5 мин. 〰️ 400 метров
Золотые ворота
🚶6 мин. 〰️ 650 метров
Университет
🚶10 мин. 〰️ 800 метров
Площадь
108.00 м²
Этаж
1
Цена
$ 81
 Добавить в избранное
 

Аренда помещения 108,29м2 в БЦ «Леонардо», центр Киева (1 очередь)
Адрес: ул. Богдана Хмельницкого, 19-21. Шевченковский район.

Метро
Театральная
🚶5 мин. 〰️ 400 метров
Золотые ворота
🚶6 мин. 〰️ 650 метров
Университет
🚶10 мин. 〰️ 800 метров
Площадь
24.00 м²
Этаж
1
Цена
$ 34,2
 Добавить в избранное
 

Аренда офисного помещения 23,8м2 в БЦ «Леонардо», центр Киева (1 очередь)
Адрес: ул. Богдана Хмельницкого, 19-21. Шевченковский район.

Метро
Театральная
🚶5 мин. 〰️ 400 метров
Золотые ворота
🚶6 мин. 〰️ 650 метров
Университет
🚶10 мин. 〰️ 800 метров
Площадь
433.00 м²
Этаж
5
Цена
$ 20
 Добавить в избранное
 

Аренда премиального офиса в БЦ «Леонардо», центр Киева (1 очередь)

Метро
Театральная
🚶5 мин. 〰️ 400 метров
Золотые ворота
🚶6 мин. 〰️ 650 метров
Университет
🚶10 мин. 〰️ 800 метров
Площадь
232.00 м²
Этаж
7
Цена
$ 20
 Добавить в избранное
 

Аренда премиального офиса в БЦ «Леонардо», центр Киева (1 очередь)

Метро
Театральная
🚶5 мин. 〰️ 400 метров
Золотые ворота
🚶6 мин. 〰️ 650 метров
Университет
🚶10 мин. 〰️ 800 метров
Площадь
101.00 м²
Этаж
2
Цена
$ 21
 Добавить в избранное
 

Аренда премиального офиса в БЦ «Леонардо», центр Киева (1 очередь)

Метро
Театральная
🚶5 мин. 〰️ 400 метров
Золотые ворота
🚶6 мин. 〰️ 650 метров
Университет
🚶10 мин. 〰️ 800 метров
Площадь
92.00 м²
Этаж
4
Цена
$ 21
 Добавить в избранное
 

Аренда премиального офиса в БЦ «Леонардо», центр Киева (1 очередь)

Метро
Театральная
🚶5 мин. 〰️ 400 метров
Золотые ворота
🚶6 мин. 〰️ 650 метров
Университет
🚶10 мин. 〰️ 800 метров
Площадь
488.00 м²
Этаж
5
Цена
$ 20
 Добавить в избранное
 

Аренда премиального офиса в БЦ «Леонардо», центр Киева (1 очередь)

Бизнес-центры рядом

Метро
Театральная
🚶5 мин. 〰️ 400 метров
Золотые ворота
🚶6 мин. 〰️ 650 метров
Университет
🚶10 мин. 〰️ 800 метров
Площадь: 511.00 м²
Этаж: 8
Цена: $ 41,4
Площадь: 270.00 м²
Этаж: 10
Цена: $ 37,8
Площадь: 196.00 м²
Этаж: 5
Цена: $ 30,6
Площадь: 573.00 м²
Этаж: 10
Цена: $ 35,4
Все площади