Skip to main content
District:
Holosiivskyi
Number of bathrooms:
5
Renovation:
category B
Number of storeys
6
Area
629m²
Floor:
3
Taxation:
VAT included
Price m²
$ 24

Total:

$ 24
/ m²
$ 15,096
/ month
$ 181,152
/ year

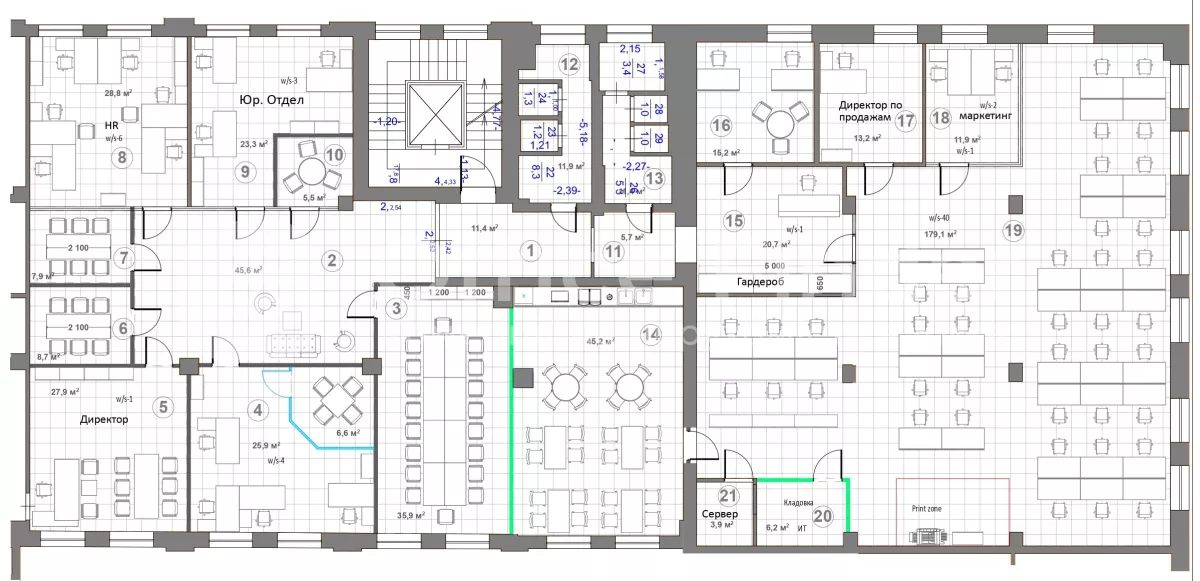
A spacious and modern office with a total area of ​​629.16 sq m is offered for rent in the prestigious business park "Europassage", located at: 58/10 Sim’yi Prakhovykh St. The location in the business center of Kyiv provides convenient transport accessibility and prestige for your business.
Main characteristics of the office:
• Floor: 3rd
• Area: 551.9 sq.m plus the coefficient of total areas of 14% = 629.16 sq.m
• Format: combined layout (open space + offices)
• Condition: high-quality modern renovation
Planning and equipment:
The office space is ideal for medium and large business companies and includes:
• spacious open space for teamwork
• separate offices (some with glass tinted partitions)
• conference room
• meeting rooms
• fully equipped kitchen
• bathrooms (WC)
The office has modern engineering systems installed:
• ventilation and air conditioning system
• autonomous heating
• uninterrupted power supply thanks to a powerful generator
Advantages of the business center:
• modern business park with developed infrastructure
• availability of shelter for employee safety
• 24-hour access and security
• convenient transport interchange
Location:
The office is located in the central district of Kyiv, within walking distance of the metro stations:
• Olimpiyskaya
• Universitet
This makes it easy for both employees and clients to get to the office.
Commercial terms:
• Rental rate: $15/sq m excluding VAT
• Operating costs (OРЕХ): $5/sq m excluding VAT
Renting an office in the Europassage Business Center is the optimal solution for companies looking for a comfortable, functional and prestigious space in the center of Kyiv.

Underground
Olimpiyska
🚶18-min 1.5 km
Vokzalna
🚶19-min 1.5 km
Universytet
🚶21 -min 2 km
Infrastructure
ATM, bank branch
Nova Poshta
Cleaning
Cafe, restaurant
Gym

More offices in this building

Underground
Olimpiyska
🚶18-min 1.5 km
Vokzalna
🚶19-min 1.5 km
Universytet
🚶21 -min 2 km
Area
578.00m²
Floor
3
Price
$ 24.59
 Add to favourites
 

Office for rent in the business park "Europassage"
52/10 Sim'yi Prakhovykh St.

Underground
Olimpiyska
🚶18-min 1.5 km
Vokzalna
🚶19-min 1.5 km
Universytet
🚶21 -min 2 km
Area
363.00m²
Floor
3
Price
$ 23.38
 Add to favourites
 

Office for rent in the Europassage business park
58/10 Sim’yi Prakhovykh St.

Underground
Olimpiyska
🚶18-min 1.5 km
Vokzalna
🚶19-min 1.5 km
Universytet
🚶21 -min 2 km
Area
260.00m²
Floor
5
Price
$ 21.4
 Add to favourites
 

Rent an office with furniture and a terrace in the business park "Europassage"
58/10 Sim'i Prakhovykh St. 5th floor

Underground
Olimpiyska
🚶18-min 1.5 km
Vokzalna
🚶19-min 1.5 km
Universytet
🚶21 -min 2 km
Area
1488.00m²
Floor
8
Price
$ 30
 Add to favourites
 

Rent of a modern office of 1488 m² in the Business Park "Europassage"
Address: 54 Sim'i Prakhovykh St., Holosiivskyi district. Olimpiyskaya st.

Underground
Olimpiyska
🚶18-min 1.5 km
Vokzalna
🚶19-min 1.5 km
Universytet
🚶21 -min 2 km
Area
1822.00m²
Floor
6
Price
$ 30
 Add to favourites
 

Rent of a modern office of 1822 m² in the Business Park "Europassage"
54 Sim'i Prakhovykh St.

Underground
Olimpiyska
🚶18-min 1.5 km
Vokzalna
🚶19-min 1.5 km
Universytet
🚶21 -min 2 km
Area
650.00m²
Floor
5
Price
$ 30
 Add to favourites
 

Rent of a modern office of 650 m² in the Business Park "Europassage"
54 Sim'i Prakhovykh St.

Underground
Olimpiyska
🚶18-min 1.5 km
Vokzalna
🚶19-min 1.5 km
Universytet
🚶21 -min 2 km
Area
729.00m²
Floor
2
Price
$ 30
 Add to favourites
 

Office for rent 729 m² in the Business Park "Europassage"
54 Sim'i Prakhovykh St.

Underground
Olimpiyska
🚶18-min 1.5 km
Vokzalna
🚶19-min 1.5 km
Universytet
🚶21 -min 2 km
Area
196.00m²
Floor
1
Price
$ 24
 Add to favourites
 

Office for rent 192.5 sq.m. in the Business Park "Europassage"

Underground
Olimpiyska
🚶18-min 1.5 km
Vokzalna
🚶19-min 1.5 km
Universytet
🚶21 -min 2 km
Area
961.00m²
Floor
5
Price
$ 24
 Add to favourites
 

Office for rent 961 sq.m in the Europassage Business Center, Sim'yi Prakhovykh (Gaidara) St., 58/10.
Address: Kyiv, Sim'yi Prakhovykh (Gaidara) St., 58/10. Holosiivskyi district.

Underground
Olimpiyska
🚶18-min 1.5 km
Vokzalna
🚶19-min 1.5 km
Universytet
🚶21 -min 2 km
Area
168.00m²
Floor
3
Price
Leased
 Add to favourites
 

Office for rent in the business park "Europassage"
58/10 Sim'yi Prakhovykh St., 3rd floor

Underground
Olimpiyska
🚶18-min 1.5 km
Vokzalna
🚶19-min 1.5 km
Universytet
🚶21 -min 2 km
Area
425.00m²
Floor
1
Price
Leased
 Add to favourites
 

Office for rent 425 m² in the business center "Europassage"
Holosiivskyi district, st. Sim'yi Prakhovykh 58/10

Area:

Underground
Olimpiyska
🚶18-min 1.5 km
Vokzalna
🚶19-min 1.5 km
Universytet
🚶21 -min 2 km
Area
410.00m²
Floor
1
Price
Leased
 Add to favourites
 

Office for rent 410 sq.m in the business park "Europassage"
58/10 Sim'yi Prakhovykh St. — next to the metro

Underground
Olimpiyska
🚶18-min 1.5 km
Vokzalna
🚶19-min 1.5 km
Universytet
🚶21 -min 2 km
Area
96.00m²
Floor
7
Price
Leased
 Add to favourites
 

Office for rent 96 sq.m. in the Europassage business center.

Street: Simi Prakhovykh 58/10. Holosiivskyi district.

Underground
Olimpiyska
🚶18-min 1.5 km
Vokzalna
🚶19-min 1.5 km
Universytet
🚶21 -min 2 km
Area
583.00m²
Floor
5
Price
Leased
 Add to favourites
 

Rent of a modern office space, with an area of ​​583 sq.m. with a terrace of 13.67 sq.m. (including the coefficient of the total area of ​​12%) in the modern business center Europasaj, st.

Underground
Olimpiyska
🚶18-min 1.5 km
Vokzalna
🚶19-min 1.5 km
Universytet
🚶21 -min 2 km
Area
400.58m²
Floor
2
Price
Leased
 Add to favourites
 

Office space for rent with an area of 400 sq.m. with a terrace (including the coefficient of total area 12%) in the modern business center Europasaj, 58/10 Simi Prakhovykh street.

Underground
Olimpiyska
🚶18-min 1.5 km
Vokzalna
🚶19-min 1.5 km
Universytet
🚶21 -min 2 km
Area
1673.50m²
Floor
5-6
Price
Leased
 Add to favourites
 

Rent of an office of 1673.5 sq.m. in the business center Europasaj, ul. Gaidara, 58/10.

Underground
Olimpiyska
🚶18-min 1.5 km
Vokzalna
🚶19-min 1.5 km
Universytet
🚶21 -min 2 km
Area
294.34m²
Floor
4
Price
Leased
 Add to favourites
 

Office space for rent with an area of 294.38 sq.m (including the coefficient of total area 12%) in the modern business center Europasaz, 58/10 Simi Prakhovykh street.

Underground
Olimpiyska
🚶18-min 1.5 km
Vokzalna
🚶19-min 1.5 km
Universytet
🚶21 -min 2 km
Area
165.00m²
Floor
3
Price
Leased
 Add to favourites
 

Rent of a separate office block with an area of 165 square meters (including the ratio of total areas of 12%) in the modern business center Europassage, 58/10 Simi Prakhovykh Street.

Underground
Olimpiyska
🚶18-min 1.5 km
Vokzalna
🚶19-min 1.5 km
Universytet
🚶21 -min 2 km
Area
320.00m²
Floor
1
Price
Leased
 Add to favourites
 

Rent of an office of 320 sq.m. including common areas in the business center Europassage,  The Prakhovy families (Haidar) str., 58/10.

Underground
Olimpiyska
🚶18-min 1.5 km
Vokzalna
🚶19-min 1.5 km
Universytet
🚶21 -min 2 km
Area
621.00m²
Floor
5
Price
Leased
 Add to favourites
 

Rent of an office of 621.9 square meters in the business center Europasaj, Gaidar (Prahov family) str., 58/10.

Business centers nearby

Underground
Olimpiyska
🚶18-min 1.5 km
Vokzalna
🚶19-min 1.5 km
Universytet
🚶21 -min 2 km
Square: 629.00m²
Floor: 3
Price: $ 24
Square: 578.00m²
Floor: 3
Price: $ 24.59
Square: 363.00m²
Floor: 3
Price: $ 23.38
Square: 260.00m²
Floor: 5
Price: $ 21.4
All objects