Skip to main content
District:
Holosiivskyi
Number of bathrooms:
4
Renovation:
office renovation
Number of storeys
6
Area
363m²
Floor:
3
Taxation:
VAT included
Price m²
$ 23.38

Total:

$ 23.38
/ m²
$ 8,486.94
/ month
$ 101,843.28
/ year

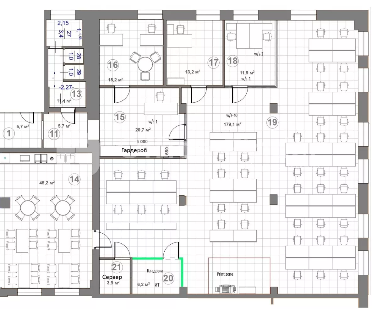
Office for rent in the Europassage business park
58/10 Sim’yi Prakhovykh St.
A spacious office is offered for rent in the modern Europassage business park, which combines comfort, functionality and high-quality infrastructure.

Area:

  • Main area: 318.2 m²
  • Area with a coefficient of common areas (+14%): 362.75 m²
  • 3rd floor

Planning and functionality:

  • Large open space
  • 3 separate offices
  • Reception area
  • Spacious kitchen
  • Bathroom (WC)

The office is bright, comfortable and suitable for both classic office activities and IT teams or companies that value functional space.
Available from 01.01.2026

Commercial terms:
Rent price: $14m2 plus VAT
Operating costs: $5.5m2 plus VAT
Total rental price $8,488/month including VAT and OPEX

Underground
Olimpiyska
🚶18-min 1.5 km
Vokzalna
🚶19-min 1.5 km
Universytet
🚶21 -min 2 km
Infrastructure
ATM, bank branch
Nova Poshta
Cleaning
Cafe, restaurant
Gym

More offices in this building

Underground
Olimpiyska
🚶18-min 1.5 km
Vokzalna
🚶19-min 1.5 km
Universytet
🚶21 -min 2 km
Area
629.00m²
Floor
3
Price
$ 24
 Add to favourites
 

A spacious and modern office with a total area of ​​629.16 sq m is offered for rent in the prestigious business park "Europassage", located at: 58/10 Sim’yi Prakhovykh St.

Underground
Olimpiyska
🚶18-min 1.5 km
Vokzalna
🚶19-min 1.5 km
Universytet
🚶21 -min 2 km
Area
578.00m²
Floor
3
Price
$ 24.59
 Add to favourites
 

Office for rent in the business park "Europassage"
52/10 Sim'yi Prakhovykh St.

Underground
Olimpiyska
🚶18-min 1.5 km
Vokzalna
🚶19-min 1.5 km
Universytet
🚶21 -min 2 km
Area
260.00m²
Floor
5
Price
$ 21.4
 Add to favourites
 

Rent an office with furniture and a terrace in the business park "Europassage"
58/10 Sim'i Prakhovykh St. 5th floor

Underground
Olimpiyska
🚶18-min 1.5 km
Vokzalna
🚶19-min 1.5 km
Universytet
🚶21 -min 2 km
Area
1488.00m²
Floor
8
Price
$ 30
 Add to favourites
 

Rent of a modern office of 1488 m² in the Business Park "Europassage"
Address: 54 Sim'i Prakhovykh St., Holosiivskyi district. Olimpiyskaya st.

Underground
Olimpiyska
🚶18-min 1.5 km
Vokzalna
🚶19-min 1.5 km
Universytet
🚶21 -min 2 km
Area
1822.00m²
Floor
6
Price
$ 30
 Add to favourites
 

Rent of a modern office of 1822 m² in the Business Park "Europassage"
54 Sim'i Prakhovykh St.

Underground
Olimpiyska
🚶18-min 1.5 km
Vokzalna
🚶19-min 1.5 km
Universytet
🚶21 -min 2 km
Area
650.00m²
Floor
5
Price
$ 30
 Add to favourites
 

Rent of a modern office of 650 m² in the Business Park "Europassage"
54 Sim'i Prakhovykh St.

Underground
Olimpiyska
🚶18-min 1.5 km
Vokzalna
🚶19-min 1.5 km
Universytet
🚶21 -min 2 km
Area
729.00m²
Floor
2
Price
$ 30
 Add to favourites
 

Office for rent 729 m² in the Business Park "Europassage"
54 Sim'i Prakhovykh St.

Underground
Olimpiyska
🚶18-min 1.5 km
Vokzalna
🚶19-min 1.5 km
Universytet
🚶21 -min 2 km
Area
196.00m²
Floor
1
Price
$ 24
 Add to favourites
 

Office for rent 192.5 sq.m. in the Business Park "Europassage"

Underground
Olimpiyska
🚶18-min 1.5 km
Vokzalna
🚶19-min 1.5 km
Universytet
🚶21 -min 2 km
Area
961.00m²
Floor
5
Price
$ 24
 Add to favourites
 

Office for rent 961 sq.m in the Europassage Business Center, Sim'yi Prakhovykh (Gaidara) St., 58/10.
Address: Kyiv, Sim'yi Prakhovykh (Gaidara) St., 58/10. Holosiivskyi district.

Underground
Olimpiyska
🚶18-min 1.5 km
Vokzalna
🚶19-min 1.5 km
Universytet
🚶21 -min 2 km
Area
168.00m²
Floor
3
Price
Leased
 Add to favourites
 

Office for rent in the business park "Europassage"
58/10 Sim'yi Prakhovykh St., 3rd floor

Underground
Olimpiyska
🚶18-min 1.5 km
Vokzalna
🚶19-min 1.5 km
Universytet
🚶21 -min 2 km
Area
425.00m²
Floor
1
Price
Leased
 Add to favourites
 

Office for rent 425 m² in the business center "Europassage"
Holosiivskyi district, st. Sim'yi Prakhovykh 58/10

Area:

Underground
Olimpiyska
🚶18-min 1.5 km
Vokzalna
🚶19-min 1.5 km
Universytet
🚶21 -min 2 km
Area
410.00m²
Floor
1
Price
Leased
 Add to favourites
 

Office for rent 410 sq.m in the business park "Europassage"
58/10 Sim'yi Prakhovykh St. — next to the metro

Underground
Olimpiyska
🚶18-min 1.5 km
Vokzalna
🚶19-min 1.5 km
Universytet
🚶21 -min 2 km
Area
96.00m²
Floor
7
Price
Leased
 Add to favourites
 

Office for rent 96 sq.m. in the Europassage business center.

Street: Simi Prakhovykh 58/10. Holosiivskyi district.

Underground
Olimpiyska
🚶18-min 1.5 km
Vokzalna
🚶19-min 1.5 km
Universytet
🚶21 -min 2 km
Area
583.00m²
Floor
5
Price
Leased
 Add to favourites
 

Rent of a modern office space, with an area of ​​583 sq.m. with a terrace of 13.67 sq.m. (including the coefficient of the total area of ​​12%) in the modern business center Europasaj, st.

Underground
Olimpiyska
🚶18-min 1.5 km
Vokzalna
🚶19-min 1.5 km
Universytet
🚶21 -min 2 km
Area
400.58m²
Floor
2
Price
Leased
 Add to favourites
 

Office space for rent with an area of 400 sq.m. with a terrace (including the coefficient of total area 12%) in the modern business center Europasaj, 58/10 Simi Prakhovykh street.

Underground
Olimpiyska
🚶18-min 1.5 km
Vokzalna
🚶19-min 1.5 km
Universytet
🚶21 -min 2 km
Area
1673.50m²
Floor
5-6
Price
Leased
 Add to favourites
 

Rent of an office of 1673.5 sq.m. in the business center Europasaj, ul. Gaidara, 58/10.

Underground
Olimpiyska
🚶18-min 1.5 km
Vokzalna
🚶19-min 1.5 km
Universytet
🚶21 -min 2 km
Area
294.34m²
Floor
4
Price
Leased
 Add to favourites
 

Office space for rent with an area of 294.38 sq.m (including the coefficient of total area 12%) in the modern business center Europasaz, 58/10 Simi Prakhovykh street.

Underground
Olimpiyska
🚶18-min 1.5 km
Vokzalna
🚶19-min 1.5 km
Universytet
🚶21 -min 2 km
Area
165.00m²
Floor
3
Price
Leased
 Add to favourites
 

Rent of a separate office block with an area of 165 square meters (including the ratio of total areas of 12%) in the modern business center Europassage, 58/10 Simi Prakhovykh Street.

Underground
Olimpiyska
🚶18-min 1.5 km
Vokzalna
🚶19-min 1.5 km
Universytet
🚶21 -min 2 km
Area
320.00m²
Floor
1
Price
Leased
 Add to favourites
 

Rent of an office of 320 sq.m. including common areas in the business center Europassage,  The Prakhovy families (Haidar) str., 58/10.

Underground
Olimpiyska
🚶18-min 1.5 km
Vokzalna
🚶19-min 1.5 km
Universytet
🚶21 -min 2 km
Area
621.00m²
Floor
5
Price
Leased
 Add to favourites
 

Rent of an office of 621.9 square meters in the business center Europasaj, Gaidar (Prahov family) str., 58/10.

Business centers nearby

Underground
Olimpiyska
🚶18-min 1.5 km
Vokzalna
🚶19-min 1.5 km
Universytet
🚶21 -min 2 km
Square: 629.00m²
Floor: 3
Price: $ 24
Square: 578.00m²
Floor: 3
Price: $ 24.59
Square: 363.00m²
Floor: 3
Price: $ 23.38
Square: 260.00m²
Floor: 5
Price: $ 21.4
All objects