Skip to main content
District:
Podolskiy
Number of bathrooms:
11
Renovation:
category B
Number of storeys
11
Area
1105m²
Floor:
8
Taxation:
VAT included
Price m²
$ 27.6

Total:

$ 27.6
/ m²
$ 30,498
/ month
$ 365,976
/ year

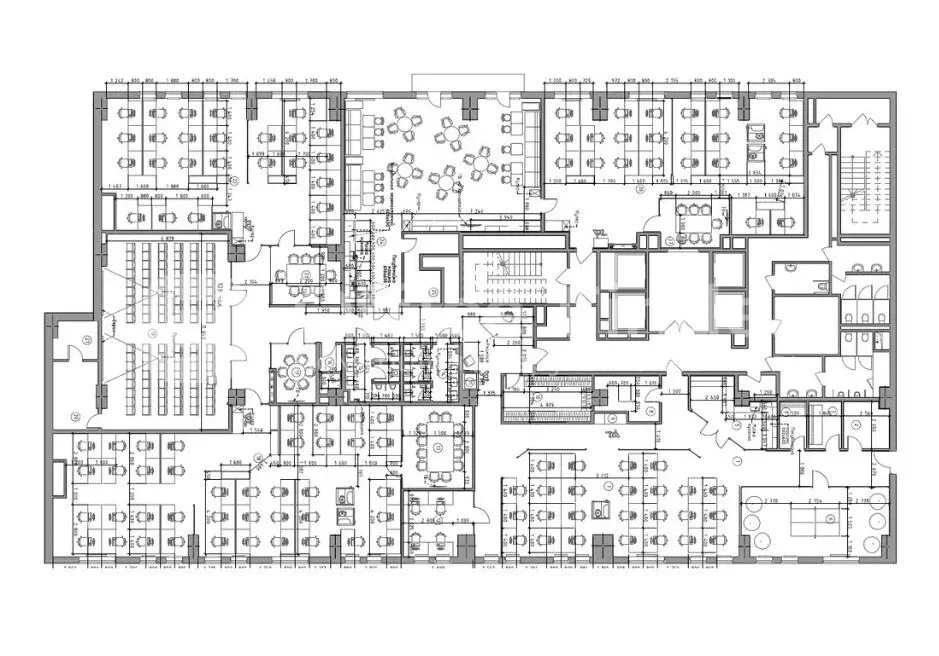
Class A office space for rent in Podilskyi district in BC Astarta, Yaroslavska Street, 58.
A spacious non-residential office space with a total rental area of ​​960.87 m² is offered for rent, located on the 8th floor of the business center (Block C) in the Podilskyi district of Kyiv, at Yaroslavska Street. The entrance to the building is from Naberezhno-Khreshchatytska Street. Convenient transport connections are provided by the nearest metro stations "Kontraktova Ploshcha" and "Taras Shevchenko".
The office is located in a non-residential building, has a high-quality renovation after the tenant. The layout is mixed: open work areas, separate offices (10 offices), meeting rooms, kitchens, bathrooms and a shower room.
Technical characteristics and advantages:

  • leasable area: 1,105 m²
  • usable area: 960.87 m²
  • BOMA ratio: 15%
  • generator available
  • building shelter
  • equipped kitchens
  • parking for employees and visitors

Financial terms:
•    rental rate: 21.6 USD/m² (including VAT)
•    operating expenses (OPEX): 6 USD/m² (including VAT)
•    total rental cost: 30,498 USD/month (including VAT) plus utility bills
•    owner - VAT payer
All financial terms and rates are discussed individually.
This space is ideal for housing the company's head office, IT team or representative office of an international business that values ​​comfort, security and a prestigious location in the historical part of the city.

Underground
Kontraktova ploshcha
9 minutes, ​800 m.
Poshtova ploshcha
22 minutes, 2 km.
Infrastructure
ATM, bank branch
Nova Poshta
Hotel
Supermarket
Cleaning
Beauty saloon
Cafe, restaurant
Gym

More offices in this building

Underground
Kontraktova ploshcha
9 minutes, ​800 m.
Poshtova ploshcha
22 minutes, 2 km.
Area
2114.00m²
Floor
8
Price
$ 24
 Add to favourites
 

Office for rent 2114 sq.m, Yaroslavska st., 58 Podil, BC Astarta. A modern office is offered for rent, located on the 8th floor of the Astarta business center, located on Yaroslavska st., 58.

Underground
Kontraktova ploshcha
9 minutes, ​800 m.
Poshtova ploshcha
22 minutes, 2 km.
Area
1108.73m²
Floor
4
Price
$ 28
 Add to favourites
 

Office for rent with an area of 1108 square meters. in the Business Center "Astarta Organic Business Center"
Address: Ukraine, Kyiv, Yaroslavska Street, 58

Underground
Kontraktova ploshcha
9 minutes, ​800 m.
Poshtova ploshcha
22 minutes, 2 km.
Area
201.62m²
Floor
6
Price
$ 21
 Add to favourites
 

Office for rent with an area of 175 square meters. in the Business Center "Astarta Organic Business Center"
Address: Ukraine, Kyiv, Yaroslavska Street, 58

Underground
Kontraktova ploshcha
9 minutes, ​800 m.
Poshtova ploshcha
22 minutes, 2 km.
Area
1487.92m²
Floor
3
Price
$ 19
 Add to favourites
 

Block B, 3rd floor
(entrance at the corner of Nizhny Val and Naberezhno-Khreshchatytska streets)

Underground
Kontraktova ploshcha
9 minutes, ​800 m.
Poshtova ploshcha
22 minutes, 2 km.
Area
235.00m²
Floor
1
Price
$ 16
 Add to favourites
 

Rent of a facade space of 235 sq.m in the Astarta Business Center. Facade on Nyzhniy Val Street.
The space is ideal for a shop or showroom.

Underground
Kontraktova ploshcha
9 minutes, ​800 m.
Poshtova ploshcha
22 minutes, 2 km.
Area
695.00m²
Floor
9
Price
Leased
 Add to favourites
 

An office is offered in the premium BC class "A" Astarta in the central part of the basement. OFFICE SYSTEM (entrance from Nyzhniy Val street). Metro "Kontraktova Ploshcha" 5 min.

Underground
Kontraktova ploshcha
9 minutes, ​800 m.
Poshtova ploshcha
22 minutes, 2 km.
Area
2119.00m²
Floor
5
Price
Leased
 Add to favourites
 

Office for rent with an area of ​​2119 square meters. in the Business Center "Astarta Organic Business Center"
Address: Ukraine, Kyiv, Yaroslavska Street, 58

Underground
Kontraktova ploshcha
9 minutes, ​800 m.
Poshtova ploshcha
22 minutes, 2 km.
Area
500.00m²
Floor
2
Price
Leased
 Add to favourites
 

Office for rent with an area of ​​500 square meters. in the Business Center "Astarta Organic Business Center"
Address: Ukraine, Kyiv, Yaroslavska Street, 58

Underground
Kontraktova ploshcha
9 minutes, ​800 m.
Poshtova ploshcha
22 minutes, 2 km.
Area
413.52m²
Floor
10
Price
Leased
 Add to favourites
 

Rent of an office with an area of 413.52 square meters in the Business Center "Astarta Organic Business Centre"
Address: Ukraine, Kyiv, Yaroslavska Street, 58

Underground
Kontraktova ploshcha
9 minutes, ​800 m.
Poshtova ploshcha
22 minutes, 2 km.
Area
1051.33m²
Floor
10
Price
Leased
 Add to favourites
 

Office for rent with an area of 914 square meters. in the Business Center "Astarta Organic Business Center"
Address: Ukraine, Kyiv, Yaroslavska Street, 58

Underground
Kontraktova ploshcha
9 minutes, ​800 m.
Poshtova ploshcha
22 minutes, 2 km.
Area
1103.00m²
Floor
7
Price
Leased
 Add to favourites
 

Office rent with an area of 959 sq.m. to Business center "Astarta Organic Business Center"
Address: Ukraine, Kiev, Yaroslavskaya Street, 58.

Underground
Kontraktova ploshcha
9 minutes, ​800 m.
Poshtova ploshcha
22 minutes, 2 km.
Area
1104.81m²
Floor
6
Price
Leased
 Add to favourites
 

Office for rent with an area of 960 square meters. in the Business Center "Astarta Organic Business Center"
Address: Ulytsa Yaroslavskaya, 58, Kyiv, Ukraine.

Underground
Kontraktova ploshcha
9 minutes, ​800 m.
Poshtova ploshcha
22 minutes, 2 km.
Area
450.54m²
Floor
2
Price
Leased
 Add to favourites
 

Office rent with an area of 397 sq.m. to Business center "Astarta Organic Business Center"
Address: Ukraine, Kiev, Yaroslavskaya Street, 58.

Underground
Kontraktova ploshcha
9 minutes, ​800 m.
Poshtova ploshcha
22 minutes, 2 km.
Area
385.00m²
Floor
2
Price
Leased
 Add to favourites
 

Office for rent with an area of 335 square meters. in the Business Center "Astarta Organic Business Center"
Address: Ukraine, Kyiv, Yaroslavska Street, 58

Business centers nearby

Underground
Kontraktova ploshcha
9 minutes, ​800 m.
Poshtova ploshcha
22 minutes, 2 km.
Square: 1105.00m²
Floor: 8
Price: $ 27.6
Square: 2114.00m²
Floor: 8
Price: $ 24
Square: 695.00m²
Floor: 9
Price: $ 23
Square: 2119.00m²
Floor: 5
Price: $ 24
All objects
Underground
Kontraktova ploshcha
-🚶9 min - 800 m
Tarasa Shevchenka
🚶19-min​ 1.5 km
Square: 4155.00m²
Floor: 3
Price: $ 12
Square: 520.00m²
Floor: 3
Price: $ 18
Square: 520.00m²
Floor: 4
Price: $ 18
Square: 520.00m²
Floor: 5
Price: $ 18
All objects