Skip to main content
Район:
Шевченківський
Кількість санвузлів:
2
Ремонт:
офісний ремонт
Поверховість
22
Площа
180 м²
Поверх:
7
Оподаткування:
Без ПДВ
Ціна м²
$ 47,22

Загалом:

$ 47,22
/ м²
$ 8 499,6
/ місяць
$ 101 995,2
/ рік

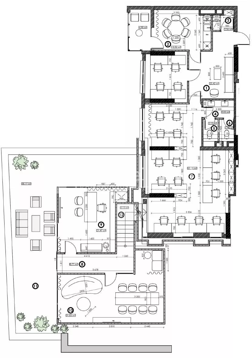
Оренда абсолютно нового офісу в центрі Києва, ЖК Ярославів Град
вул. Бульварно-Кудрявська, 17 (поруч Золоті Ворота, Львівська площа)

Офіс розташований у новому житловому комплексі бізнес-класу з підземним паркінгом та закритою територією. Власна тераса

Функціональне планування:

  • Простора зона open-space
  • Кабінет керівника
  • Переговорна кімната
  • Кухня
  • 2 санвузли

Офіс повністю укомплектований:

  • Сучасні меблі
  • Побутова та офісна техніка
  • Кондиціонування
  • Шумоізоляція
  • Система резервного живлення: генератор 250 кВт — світло є завжди

Інфраструктура ЖК Ярославів Град:

  • Стріт-рітейл на перших поверхах (кафе, шоуруми, послуги)
  • Цілодобова охорона та відеоспостереження
  • Підземний паркінг
  • Зелена зона та внутрішній дворик
  • 10 хв до метро Золоті Ворота / Університе

Вартість оренди — 8 500 $/міс

Метро
Золоті ворота
-🚶15 хв - 1,1 км
Університет
-🚶20 хв​ - 1.3 км
Інфраструктура
Банкомат, відділення банку
Відділення Нової Пошти (НП)
Готель
Супермаркет
Хімчистка
Салон краси
Кафе, ресторан
Спорт зал

Ще офіси у цьому будинку

Метро
Золоті ворота
-🚶15 хв - 1,1 км
Університет
-🚶20 хв​ - 1.3 км
Площа
254.00 м²
Поверх
3
Ціна
$ 43,3
 Додати в обране
 

Оренда дизайнерського офісу 254 м². ЖК «Ярославів Град»
Адреса: вул. Бульварно-Кудрявська, Київ
ЖК: Ярославів Град

Площа: 254 м

Метро
Золоті ворота
-🚶15 хв - 1,1 км
Університет
-🚶20 хв​ - 1.3 км
Площа
172.00 м²
Поверх
1
Ціна
$ 20
 Додати в обране
 

Оренда фасадного комерційного приміщення — 172 м²
вул. Бульварно-Кудрявська, 15, Шевченківський р-н

Метро
Золоті ворота
-🚶15 хв - 1,1 км
Університет
-🚶20 хв​ - 1.3 км
Площа
157.00 м²
Поверх
1
Ціна
$ 25,48
 Додати в обране
 

Оренда фасадного приміщення 157кв.м в центрі Києва ЖК «Ярославів Град»
Адреса вул. Бульварно-Кудрявська, 17-Б.

Метро
Золоті ворота
-🚶15 хв - 1,1 км
Університет
-🚶20 хв​ - 1.3 км
Площа
208.00 м²
Поверх
2
Ціна
$ 38,46
 Додати в обране
 

Оренда преміальний офісу 208м2, 8000$, «Ярославів Град», метро 12 хв! 

Метро
Золоті ворота
-🚶15 хв - 1,1 км
Університет
-🚶20 хв​ - 1.3 км
Площа
350.00 м²
Поверх
7
Ціна
$ 37,14
 Додати в обране
 

Довгострокова оренда дизайнерського офісу в центрі Києва.
ЖК Ярославів Град, Шевченківський рн, вул. Бульварно-Кудрявська, 17

ХАРАКТЕРИСТИКИ:

Метро
Золоті ворота
-🚶15 хв - 1,1 км
Університет
-🚶20 хв​ - 1.3 км
Площа
75.00 м²
Поверх
13
Ціна
$ 22,66
 Додати в обране
 

Оренда офісного приміщення в центрі Києва, ЖК «Ярославів Град» вулиця Бульварно-кудрявська.

Метро
Золоті ворота
-🚶15 хв - 1,1 км
Університет
-🚶20 хв​ - 1.3 км
Площа
170.00 м²
Поверх
1-2
Ціна
Здано
 Додати в обране
 

Оренда абсолютно нового офісу в центрі Києва, ЖК Ярославів Град
вул. Бульварно-Кудрявська, 17 (поруч Золоті Ворота, Львівська площа)

Метро
Золоті ворота
-🚶15 хв - 1,1 км
Університет
-🚶20 хв​ - 1.3 км
Площа
125.00 м²
Поверх
3
Ціна
Здано
 Додати в обране
 

Оренда офісу в центрі Києва, вул. Бульварно-Кудрявська 13

Метро
Золоті ворота
-🚶15 хв - 1,1 км
Університет
-🚶20 хв​ - 1.3 км
Площа
170.00 м²
Поверх
7
Ціна
Здано
 Додати в обране
 

Оренда абсолютно нового офісу в центрі Києва, ЖК Ярославів Град
вул. Бульварно-Кудрявська, 17 (поруч Золоті Ворота, Львівська площа)

Бізнес-центри поруч

Метро
Золоті ворота
-🚶15 хв - 1,1 км
Університет
-🚶20 хв​ - 1.3 км
Площа: 180.00 м²
Поверх: 7
Ціна: $ 47,22
Площа: 254.00 м²
Поверх: 3
Ціна: $ 43,3
Площа: 172.00 м²
Поверх: 1
Ціна: $ 20
Площа: 157.00 м²
Поверх: 1
Ціна: $ 25,48
Всі об'єкти
Метро
Золоті ворота
🚶7- хв​., 1,1 км.
Площа: 252.00 м²
Поверх: 2
Ціна: $ 21
Площа: 600.00 м²
Поверх: 6
Ціна: $ 21
Площа: 600.00 м²
Поверх: 3
Ціна: $ 21
Метро
Золоті ворота
1,5 км, 19 хв пішки
Університет
1,3 км, 18 хв пішки
Площа: 800.00 м²
Поверх: 1
Ціна: $ 18
Площа: 783.00 м²
Поверх: 1
Ціна: $ 17
Площа: 947.00 м²
Поверх: 4
Ціна: $ 18
Площа: 234.50 м²
Поверх: цоколь
Ціна: $ 15,5
Всі об'єкти