ID: 2073
Район:
Шевченківський
Кількість санвузлів:
4
Ремонт:
офісний ремонт
Поверховість
6
Площа
600 м²
Поверх:
6
Оподаткування:
З ПДВ
Ціна м²
$ 21
Загалом:
$ 21
/ м²
$ 12 600
/ місяць
$ 151 200
/ рік
Микола Дем’ян-Грицюк

+38 093 589 05 74
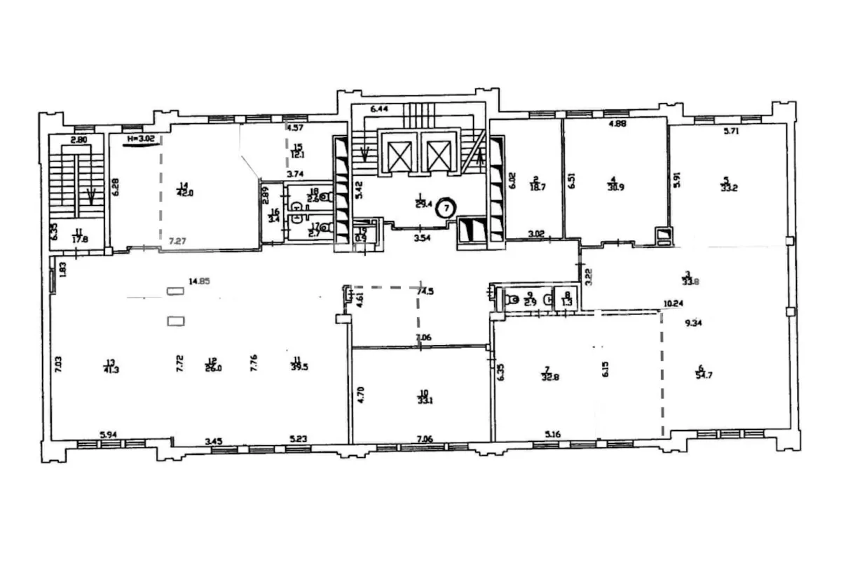
Оренда офісу 600 м² у БЦ класу B+
м. Київ, вул. Ярославів Вал, 23. Станція метро “Золоті Ворота” — 3 хв пішки
Характеристики приміщення:
- Площа: 600 м², 6-й поверх
- Планування: open space + кабінети, кухня, 4 санвузли на поверсі
- Стан: після орендарів, можливе перепланування, косметичний ремонт
- Інженерія: центральне кондиціонування, вентиляція, власне опалення
- Енергетична автономність: дизельний генератор на весь бізнес-центр
- Мережі: змонтовані електромережі, комп’ютерна розводка, пожежна сигналізація
Інфраструктура та безпека:
- Цілодобова охорона та система контролю доступу на поверх
- Підземний паркінг: 2 паркомісця на поверх (вартість 250 $/міс з ПДВ)
- Укриття: облаштовано в паркінгу
- Зручна транспортна доступність, розвинена ділова інфраструктура району
Комерційні умови:
- Орендна ставка: 21 $/м² на місяць (з ПДВ та OPEX)
- Додатково: комунальні послуги
БЦ Ярославів Вал 23 — це сучасний бізнес-простір у самому серці Києва з історичним шармом і комфортом класу B+. Ідеальне рішення для компаній, які цінують престиж локації, надійність і функціональність
Метро
Золоті ворота
🚶7- хв., 1,1 км.