Skip to main content
Район:
Печерський
Кількість санвузлів:
2
Ремонт:
офісний ремонт
Поверховість
19
Площа
220 м²
Поверх:
2
Оподаткування:
Без ПДВ
Ціна м²
$ 52,27

Загалом:

$ 52,27
/ м²
$ 11 499,4
/ місяць
$ 137 992,8
/ рік

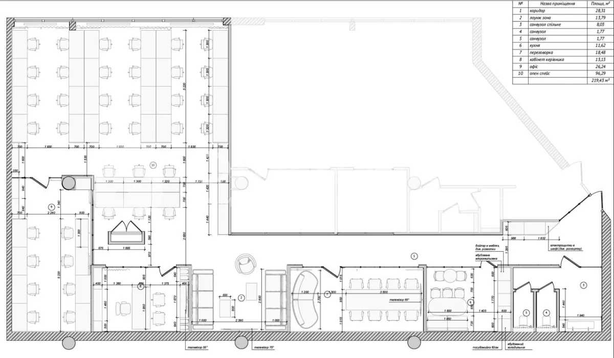
Оренда сучасного офісу 220м2 ЖК «Бульвар Фонтанів»
Адреса: м. Київ, вул. Іоанна Павла II, 6/1

Пропонується в оренду стильний офіс у престижному житлово-діловому комплексі бізнес-класу «Бульвар Фонтанів». Простір ідеально підійде для компанії, яка цінує комфорт, імідж та ефективну організацію робочого процесу.

Основні характеристики

  • Площа: 220 м²
  • Поверх: 2
  • Панорамні вікна та якісне природне освітлення

Планування

  • Open space на 39 робочих місць
  • Кабінет керівника
  • Переговорна кімната
  • Лаунж-зона для відпочинку
  • Кухня
  • 2 санвузли

Переваги

  • Престижна локація у центрі Києва
  • Продумане функціональне зонування
  • Сучасні інженерні рішення
  • Підземний паркінг
  • Встановлений генератор (безперебійна робота офісу)

Офіс повністю готовий до роботи та не потребує додаткових вкладень.

Вартість оренди $11500/місяць

Метро
Либідська
🚶16 хв - 1,6 км
Палац «Україна»
🚶14 хв​ - 1.2 км
Інфраструктура
Банкомат, відділення банку
Відділення Нової Пошти (НП)
Готель
Супермаркет
Хімчистка
Салон краси
Кафе, ресторан
Спорт зал

Ще офіси у цьому будинку

Метро
Либідська
🚶16 хв - 1,6 км
Палац «Україна»
🚶14 хв​ - 1.2 км
Площа
250.00 м²
Поверх
2
Ціна
$ 16
 Додати в обране
 

Оренда офісу 250 м². ЖК «Бульвар Фонтанів» Печерськ
вул. Саперне Поле, 6/1. Житловий комплекс Бульвар Фонтанів

Бізнес-центри поруч

Метро
Либідська
🚶16 хв - 1,6 км
Палац «Україна»
🚶14 хв​ - 1.2 км
Площа: 250.00 м²
Поверх: 2
Ціна: $ 16
Площа: 220.00 м²
Поверх: 2
Ціна: $ 52,27
Житловий комплекс “Бульвар Фонтанів” — преміум-локація Печерська
Метро
Палац «Україна»
-🚶7 хв - 600 м
Площа: 110.00 м²
Поверх: 5
Ціна: $ 17,28
Площа: 80.00 м²
Поверх: 24
Ціна: $ 25
Площа: 160.00 м²
Поверх: 1
Ціна: $ 24,37
Площа: 224.00 м²
Поверх: 2
Ціна: $ 12,5
Всі об'єкти
Метро
Печерська
-🚶9 хв - 800 м
Палац «Україна»
-🚶19 хв 〰️ 1,5 км
Кловська
-🚶22 хв - 2 км
Площа: 65.00 м²
Поверх: 2
Ціна: $ 23
Площа: 140.00 м²
Поверх: 2
Ціна: $ 15,71
Площа: 107.00 м²
Поверх: 2
Ціна: $ 14
Площа: 120.00 м²
Поверх: 3
Ціна: $ 16,66
Всі об'єкти
Метро
Печерська
450 метрів
Площа: 120.00 м²
Поверх: 4
Ціна: $ 25
Площа: 345.00 м²
Поверх: 4
Ціна: $ 25
Площа: 55.00 м²
Поверх: 6
Ціна: $ 18
Площа: 1000.00 м²
Поверх: 4
Ціна: $ 19
Всі об'єкти