Загалом:

Пропонується в оренду офісне приміщення без меблів загальною площею 410,3 кв.м в Бізнес центрі Олімпійський, вулиця Велика Васильківська 72. Якісний офіс з комбінованим плануванням біля станції метро Олімпійська (3 хвилини пішки).
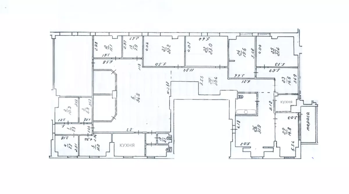
Планування: зона очікування (ресепшн), невелика переговорна кімната з виходом на відкриту терасу, 12 роздільних кабінетів, конференц зала на 40 кв.м, OPEN SPACE 87 кв.м, дві кухні та три санвузли, серверна кімната, технічна кімната (архів).
В офісі встановлено сучасну систему кондиціонування з урахуванням найвищих стандартів для комфортної роботи в офісі. По всьому приміщенню зроблена комп’ютерна мережа та всі кабелі підключені у серверній. Офіс облаштований кухнями, є посудомийна машина. Вбудовано два великі шафи-купе в коридорі.
Приміщення з якісним ремонтом: на підлозі комбінація плитки та ковроліну, стіни пофарбовані в світлі кольори, стеля «Армстронг». На вхідних дверях СКД (доступ по картках), відео домофон.
В Бізнес центрі на першому поверсі охорона, два ліфти, три півня підземного паркінгу (ліфт спускається прямо на підземний паркінг). Паркінг можна використовувати як укриття, або спускатися у метро не виходячи на вулицю.
В БЦ розвинена інфраструктура: ТРЦ з магазинами та кафе: Salateira, Пузата Хата, Idealist. Поруч відділення Нової Пошти, відділення банків.
Умови оренди:
- Вартість оренди: 15 $/м²
- Експлуатаційні витрати: 35 грн/м²
- Комунальні платежі — за лічильниками
Цей офіс — ідеальне рішення для компанії, яка шукає готове до роботи приміщення поруч зі станцією метро у діловому центрі Києва з зручною транспортною доступністю та розвиненою інфраструктурою.