Перейти к основному содержанию
Район:
Печерский
Количество санузлов:
на этаже
Ремонт:
офисный ремонт
Этажность
7
Площадь
48 м²
Этаж:
3
Налогообложение:
Без НДС
Цена м²
$ 28

Итого:

$ 28
/ м²
$ 1 344
/ месяц
$ 16 128
/ год

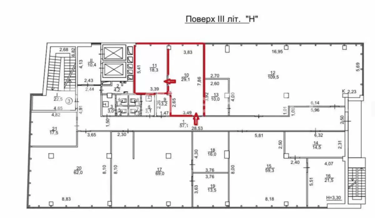
Аренда нежилого помещения в БЦ TRINITY
ул. Товарная, 1 — 3-й этаж, секция №3

Предлагается в аренду коммерческое помещение с качественным ремонтом в современном бизнес-центре TRINITY.

Локация имеет отличную инфраструктуру – рядом учебные заведения, банки, аптеки, Новая Почта, ROZETKA, супермаркеты, ТРЦ, гостиница и автовокзал.
Станции метро: Зверинецкая - 10 мин пешком, Лыбидская - 15 мин пешком.

Характеристики помещения:

  • Расположение: 3-й этаж, секция №3
  • Качественный ремонт
  • Планировка разделена на два отдельных кабинета.
  • Помещение укомплектовано мебелью
  • Система кондиционирования и вентиляции
  • Пожарная сигнализация
  • Система контроля доступа
  • Подойдет для офиса, студии, кабинета специалиста или небольшой компании

Стоимость аренды:

  • 28 $/м²
  • Коммунальные платежи: электроэнергия
Метро
Зверинецкая
9 мин - 800 м
Лыбедская
14 мин-1 км
Инфраструктура
Банкомат, отделение банка
Отделение Новой Почты (НП)
Отель
Супермаркет
Химчистка
Салон красоты
Кафе, ресторан
Спорт зал

Ещё офисы в этом здании

Метро
Зверинецкая
9 мин - 800 м
Лыбедская
14 мин-1 км
Площадь
63.00 м²
Этаж
3
Цена
$ 27
 Добавить в избранное
 

Аренда офиса 63,1м2. БЦ "ТРИНИТИ"
Адрес: Печерский р-н, ул. Товарная 1, на перекрестке с бульваром Николая Михновского 16.

Метро
Зверинецкая
9 мин - 800 м
Лыбедская
14 мин-1 км
Площадь
58.00 м²
Этаж
2
Цена
Сдано
 Добавить в избранное
 

Аренда офиса 58,7м2. БЦ "ТРИНИТИ"
Адрес: Печерский р-н, ул. Товарная 1, на перекрестке с бульваром Николая Михновского 16.

Метро
Зверинецкая
9 мин - 800 м
Лыбедская
14 мин-1 км
Площадь
58.00 м²
Этаж
5
Цена
Сдано
 Добавить в избранное
 

Аренда офиса 58м2. БЦ "ТРИНИТИ"
Адрес: Печерский р-н, ул. Товарная 1, на перекрестке с бульвар Николая Михновского 16.
БЦ "ТРИНИТИ"
Общая площадь: 58м2.
Этаж: 5.

Метро
Зверинецкая
9 мин - 800 м
Лыбедская
14 мин-1 км
Площадь
526.00 м²
Этаж
6
Цена
Сдано
 Добавить в избранное
 

Аренда офиса 526 кв.м. БЦ Trinity

Метро
Зверинецкая
9 мин - 800 м
Лыбедская
14 мин-1 км
Площадь
95.60 м²
Этаж
3
Цена
Сдано
 Добавить в избранное
 

Аренда офиса 95,6м2. БЦ "ТРИНИТИ"

Метро
Зверинецкая
9 мин - 800 м
Лыбедская
14 мин-1 км
Площадь
120.00 м²
Этаж
3
Цена
Сдано
 Добавить в избранное
 

Аренда офиса 120м2. БЦ "ТРИНИТИ"

Метро
Зверинецкая
9 мин - 800 м
Лыбедская
14 мин-1 км
Площадь
98.70 м²
Этаж
5
Цена
Сдано
 Добавить в избранное
 

Аренда офиса 98,7м2. БЦ "ТРИНИТИ"
Адрес: Печерский р-н, ул. Товарная 1, на перекрестке с бульвар Николая Михновского 16.
Общая площадь: 98,7м2.
Этаж: 5.

Бизнес-центры рядом

Метро
Зверинецкая
9 мин - 800 м
Лыбедская
14 мин-1 км
Площадь: 48.00 м²
Этаж: 3
Цена: $ 28
Площадь: 63.00 м²
Этаж: 3
Цена: $ 27
Площадь: 58.00 м²
Этаж: 2
Цена: $ 27
Площадь: 58.00 м²
Этаж: 5
Цена: $ 27
Все площади
Метро
Зверинецкая
🚶8- мин., 350 м.
Площадь: 914.00 м²
Этаж: 8
Цена: $ 18
Площадь: 474.00 м²
Этаж: 5
Цена: $ 17
Площадь: 432.00 м²
Этаж: 4
Цена: $ 17
Площадь: 520.00 м²
Этаж: 3
Цена: $ 17
Метро
Зверинецкая
-🚶11 мин - 800 м
Лыбедская
-🚶19 мин - 1,2 км
Площадь: 150.00 м²
Этаж: 8
Цена: $ 21,3
Площадь: 140.00 м²
Этаж: 3
Цена: $ 20,71
Площадь: 140.00 м²
Этаж: 16
Цена: $ 22,85
Метро
Лыбедская
🚶2 мин., 150 метров
Дворец «Украина»
🚶9 мин​., 700 метров
Площадь: 1100.00 м²
Этаж: 11
Цена: $ 18
Площадь: 1400.00 м²
Этаж: 10
Цена: $ 18
Площадь: 2400.00 м²
Этаж: 9
Цена: $ 18
Площадь: 3000.00 м²
Этаж: 8
Цена: $ 18
Все площади