Skip to main content
District:
Holosiivskyi
Number of bathrooms:
2
Renovation:
category B
Number of storeys
6
Area
311m²
Floor:
1
Taxation:
Without VAT
Price m²
$ 2,186

Total:

$ 679,846

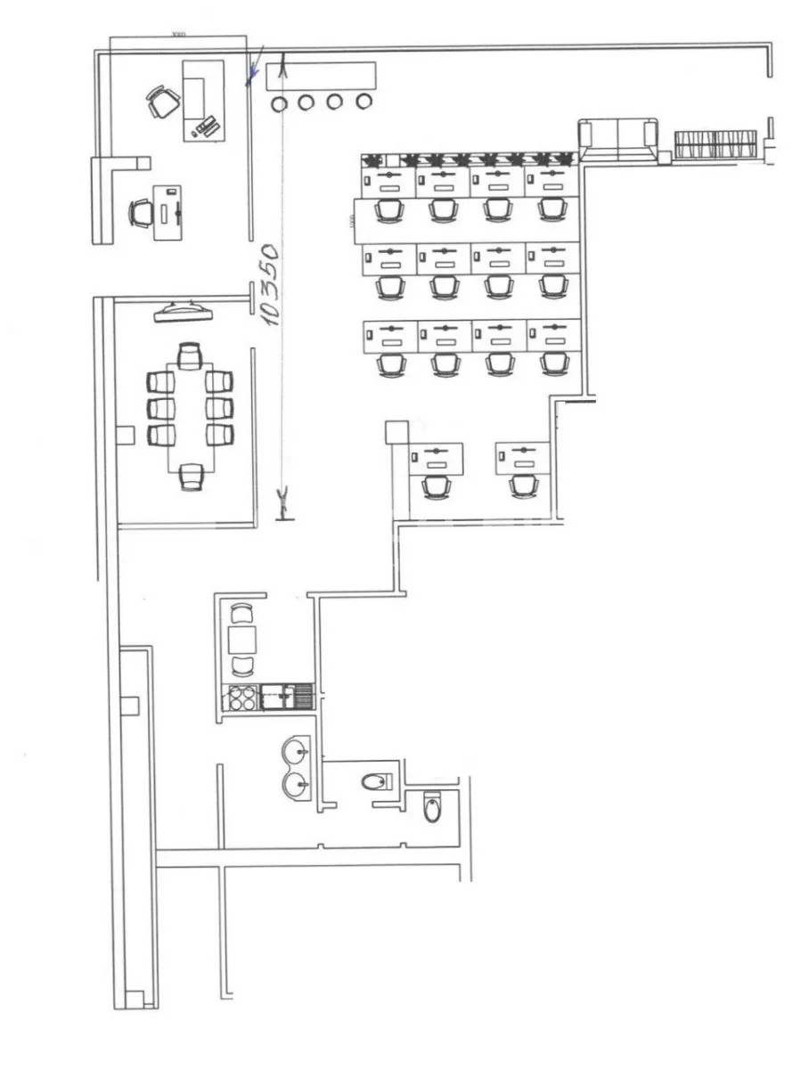
Office space for sale 311 m² in BC "Demiivskyi"
Address: Kyiv, 119x, Valeriya Lobanovskyi Ave.
District: Holosiivskyi
A spacious office space of 311 m² is offered for sale, located on the 1st floor of the modern business center "Demiivskyi". The premises have a separate entrance group, which provides convenient access for employees and clients and increases the commercial attractiveness of the facility.
The office has undergone high-quality modern renovation, the functional layout allows for effective use of space for any business format. Today, the premises are leased, which makes the facility a ready-made investment product with a stable cash flow.
Advantages of the object:

  • 1st floor, separate entrance
  • Quality renovation, no additional investments
  • Reliable tenant, steady income
  • Business center equipped with a generator - 24/7 power supply
  • Prestigious location with an active business environment
  • Metro "Demiivska" - 5 minutes walk

Ideal option for both your own business and for an investment with guaranteed profitability in one of the most sought-after areas of Kyiv.

Underground
Demiivska
🚶8 min. - 550 meters
Infrastructure
ATM, bank branch
Nova Poshta
Supermarket

Business centers nearby

Underground
Demiivska
🚶8 min. - 550 meters
Square: 311.00m²
Floor: 1
Price: $ 2,186

The DemievSky business center is located in the Holosiivsky district of Kyiv, next to the Central bus station and the Demiivska metro station.