Skip to main content
Район:
Шевченківський
Кількість санвузлів:
25
Ремонт:
mix
Поверховість
24
Площа
6800 м²
Поверх:
1
Оподаткування:
Без ПДВ
Ціна м²
$ 1 400

Загалом:

$ 9 520 000

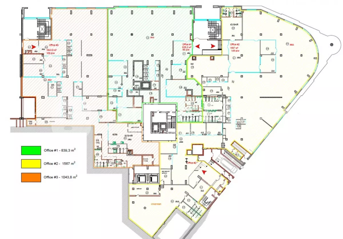
Продаж комерційного приміщення 6800 м² у центрі Києва | ЖК «Покровський Посад», вул. Глибочицька, 32
Пропонується до продажу масштабне торгово-офісне приміщення загальною площею 6800 кв. м, розташоване на 1-му та 2-му поверхах стилобату сучасного житлового комплексу ЖК «Покровський Посад» за адресою: вул. Глибочицька, 32, Київ.
Ключові переваги об'єкта:

  • Преміальна локація в центрі Києва — активний пішохідний та автомобільний трафік
  • Повністю заселений житловий комплекс — стабільний потік клієнтів
  • Розвинена інфраструктура: поруч офіси, магазини, ЖК, галерея інтер’єрів
  • Ідеально підходить для інвестування або ведення власного бізнесу

1 поверх — діючий супермаркет:

  • Фасадний окремий вхід
  • Запасні виходи відповідно до норм безпеки
  • Окрема вантажна рампа
  • Вантажні ліфти
  • Сучасна приточно-витяжна вентиляція
  • Повний комплект інженерних комунікацій
  • Готовий орендний бізнес (діючий магазин)

2 поверх — офісні приміщення:

  • Змішане планування (переважно open space)
  • Два окремі входи
  • Потужність електроенергії — понад 400 кВт
  • Всі необхідні комунікації
  • Можливість облаштування укриття
  • Ідеально для IT-компаній, call-центрів, коворкінгів, штаб-квартир

Додаткові характеристики:

  • Власна газова котельня в ЖК
  • Сучасні інженерні системи
  • Високий інвестиційний потенціал
  • Гнучкість використання (ритейл та офіси)

Вартість: 1400 $/м² (без ПДВ)
Ідеальне рішення для інвесторів та бізнесу, які шукають великий комерційний об'єкт у центрі Києва з готовим орендним потоком і можливістю масштабування.

Метро
Лук'янівська
🚶21 хв, - 1,6 км
Інфраструктура
Банкомат, відділення банку
Відділення Нової Пошти (НП)
Готель
Супермаркет
Хімчистка
Салон краси
Кафе, ресторан
Спорт зал

Бізнес-центри поруч

Метро
Лук'янівська
🚶21 хв, - 1,6 км
Площа: 6800.00 м²
Поверх: 1
Ціна: $ 1 400
   ЖК “Покровський Посад” — престижний торгово-офісно-житловий комплекс класу “В+”, який розташований на перетині старовинного Подолу і сучасного ц