Загалом:

Оренда офісу 1500 м² у Бізнес-центрі Podil Mall
м. Київ, вул. Оленівська, 23, Подільський район, станція метро Тараса Шевченка
Пропонується в оренду офісне приміщення у сучасному Бізнес-центрі класу А — Podil Mall.
- Podil Mall — це діловий простір із душею Подолу, де історична автентичність району поєднується із сучасними технологіями, комфортом та витонченим стилем.
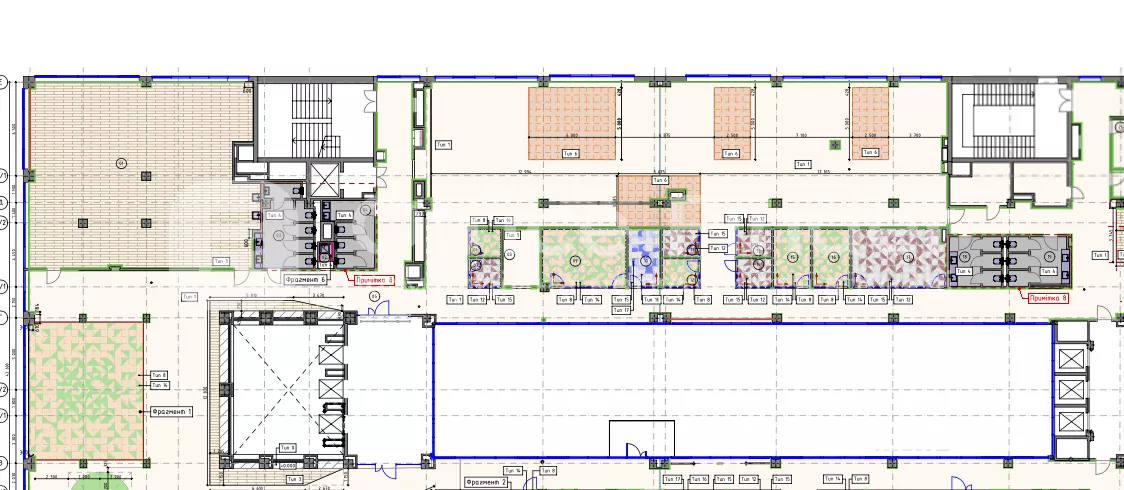
- Загальна площа приміщення з урахуванням коефіцієнт 10% = 1500 м²
- Корисна площа офісу — 1350 м²
- Розташування — 4 поверх.
Переваги та інфраструктура
- Вишукана архітектура та продуманий інтер’єр з акцентом на деталі
- Підземний паркінг для резидентів і гостей
- Внутрішній двір — зелений оазис для відпочинку та неформальних зустрічей
- Дві фасадні вхідні групи з презентабельними зонами очікування
- У кожній вхідній групі — по три швидкісні ліфти
- Власні тераси та панорамні вікна
- Система контролю доступу, відеоспостереження, цілодобова охорона
- У будівлі розташовані провідні міжнародні компанії, що формують престижне бізнес-середовище
Стан приміщення
- Частково реалізована система кондиціонування, підготовлені інженерні комунікації
- Встановлена фальшпідлога, готова до прокладання електрики та слаботочних мереж
- Раціональне планування з можливістю організації open space, кабінетів, переговорних
- Розроблено детальний проєкт ремонту, який може бути адаптований під потреби орендаря
- Podil Mall — це місце з характером
- Великий за масштабом, але з атмосферою бутікового бізнес-центру, він створює ідеальний баланс між статусом, комфортом і натхненням.
Комерційні умови
- Орендна ставка: 12 $/м² додатково ПДВ
- Експлуатаційні витрати: 2 $/м² додатково ПДВ
- Загальна вартість оренди: 25 200$/місяць (з урахуванням OPEX та ПДВ)
- Ремонтні канікули — надаються!