Skip to main content
Район:
Дніпровський
Кількість санвузлів:
6
Ремонт:
з ремонтом
Поверховість
8
Площа
986 м²
Поверх:
3
Оподаткування:
Без ПДВ
Ціна м²
$ 15

Загалом:

$ 15
/ м²
$ 14 790
/ місяць
$ 177 480
/ рік

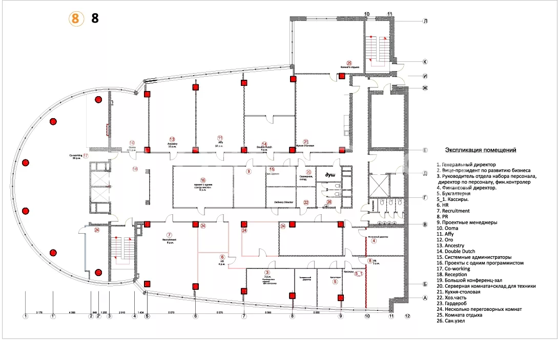
Пропонується в оренду просторе офісне приміщення площею 986 м², розташоване на всьому 3-му поверсі сучасного бізнес-центру класу B+ «Лівобережний», за адресою: вул. Євгена Сверстюка, 2А. Станція метро «Лівобережна» — у кількох хвилинах пішої доступності.
Офіс має функціональне змішане планування, що дозволяє ефективно організувати роботу команди середнього та великого розміру. Приміщення з якісним офісним ремонтом, без меблів, готове до адаптації під потреби орендаря.
Планування та оснащення:

  • open space та кабінетна система
  • кабінет керівника
  • переговорні кімнати (з можливістю трансформації у робочі зони)
  • кухня
  • серверна з автономною системою пожежогасіння
  • власні санвузли 6 шт, душова.
  • панорамні вікна з енергозберігаючими склопакетами

Інженерні та оздоблювальні рішення:
• потужна припливно-витяжна система вентиляції та кондиціонування
• підвісна стеля Armstrong
• стіни — гіпсокартон, пофарбовані
• підлога — плитка, ламінат, ковролін
• скляні офісні перегородки
Переваги бізнес-центру:
• цілодобовий доступ 24/7
• професійна цілодобова охорона
• дві незалежні лінії електропостачання
• потужний дизельний генератор (електрика 24/7)
• підземний та наземний паркінг
• обладнане укриття
Робочі місця:
• до 73 повноцінних робочих місць
• можливість збільшення кількості за рахунок переговорних кімнат
Умови оренди:

  • Орендна ставка: 650 грн/м²
  • Комунальні платежі: окремо, за показниками лічильників

Офіс ідеально підходить для IT-компанії, головного офісу корпорації, сервісної або фінансової компанії.
Звертайтесь для отримання детальної інформації та організації перегляду приміщення.

Метро
Лівобережна
🚶1 хв - 50 метрів
Інфраструктура
Банкомат, відділення банку
Відділення Нової Пошти (НП)
Готель
Супермаркет
Салон краси
Кафе, ресторан

Ще офіси у цьому будинку

Метро
Лівобережна
🚶1 хв - 50 метрів
Площа
95.00 м²
Поверх
8
Ціна
$ 12
 Додати в обране
 

Оренда офісу метро Лівобережна 95 кв.м.
Бізнес-центр Лівобережний
Дніпровський район, вул. Євгена Сверстюка,2А
Площа 95,00 кв.м.
8-й поверх

Метро
Лівобережна
🚶1 хв - 50 метрів
Площа
394.00 м²
Поверх
4
Ціна
$ 12
 Додати в обране
 

Оренда офісного приміщення 394 м² у бізнес-центрі «Лівобережний», 4 поверх.
м. Київ, Дніпровський район, вул. Євгена Сверстюка | 2 хв до м. Лівобережна

Метро
Лівобережна
🚶1 хв - 50 метрів
Площа
53.00 м²
Поверх
5
Ціна
$ 12
 Додати в обране
 

Пропонується в оренду офіс площею 53 кв.м в сучасному Бізнес Центрі на вулиці Сверстюка, 2А всього 1 хвилина пішки від станції метро Лівобережна.

Основні характеристики офісу:

Метро
Лівобережна
🚶1 хв - 50 метрів
Площа
132.00 м²
Поверх
6
Ціна
Здано
 Додати в обране
 

Бізнес-центр Лівобережний, Дніпровський район, вул. Євгена Сверстюка, 2А
Площа 132,74 кв.м.
6-й поверх
Найкраще офісне приміщення на Лівому березі!

Метро
Лівобережна
🚶1 хв - 50 метрів
Площа
986.00 м²
Поверх
7
Ціна
Здано
 Додати в обране
 

Оренда офісного приміщення 986 кв.м у сучасному Бізнес-Центрі класу В+ Лівобережний

Адреса: вулиця Євгена Сверстюка, 2А, хвилини пішки від метро Лівобережна.

Метро
Лівобережна
🚶1 хв - 50 метрів
Площа
195.00 м²
Поверх
2
Ціна
Здано
 Додати в обране
 

Пропонується в оренду офіс площею 195 кв.м у сучасному Бізнес Центрі класу В+ на вулиці Євгена Сверстюка, 2А всього 1 хвилина пішки від станції метро Лівобережна.

Характеристики офісу:

Бізнес-центри поруч

Метро
Лівобережна
🚶1 хв - 50 метрів
Площа: 95.00 м²
Поверх: 8
Ціна: $ 12
Площа: 986.00 м²
Поверх: 3
Ціна: $ 15
Площа: 394.00 м²
Поверх: 4
Ціна: $ 12
Площа: 132.00 м²
Поверх: 6
Ціна: $ 10
Всі об'єкти
Метро
Лівобережна
🚶4 хв - 260 метрів
Дарниця
🚶17 хв - 1,2 км.
Площа: 137.00 м²
Поверх: 14
Ціна: $ 7,5
Площа: 144.00 м²
Поверх: 9
Ціна: $ 8,5
Площа: 316.00 м²
Поверх: 10
Ціна: $ 5,4
Площа: 97.00 м²
Поверх: 6
Ціна: ₴ 300
Всі об'єкти
Метро
Лівобережна
🚶4 хв. - 300 метрів
Площа: 350.00 м²
Поверх: 5
Ціна: $ 8,3
Площа: 225.00 м²
Поверх: 1
Ціна: $ 10
Площа: 1100.00 м²
Поверх: 1
Ціна: ₴ 320
Площа: 350.00 м²
Поверх: 1
Ціна: $ 5
Всі об'єкти