Skip to main content
Район:
Подільський
Кількість санвузлів:
2
Ремонт:
офісний
Поверховість
6
Площа
238 м²
Поверх:
5
Оподаткування:
З ПДВ
Ціна м²
$ 19,8

Загалом:

$ 19,8
/ м²
$ 4 712,4
/ місяць
$ 56 548,8
/ рік

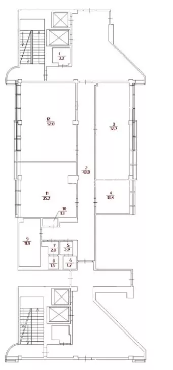
Оренда офісного приміщення загальною площею 238,05 кв.м. БЦ Іллінський, 5 поверх.

Адреса: Подільський район, вул. Іллінська 8. станція метро Контрактова Площа.

  • Телекомунікаційна система, пожежна та охоронна сигналізація. 
  • Централізоване опалення.
  • Технічний стан приміщення – готовий до заселення.  
  • Планування: кабінетна система.
  • Стан приміщення: встановлено скляні та гіпсокартонні перегородки. Підлогове покриття – ковролін. Косметичний ремонт за рахунок Орендодавця.
  •  Вентиляція та кондиціонування: Система центрального кондиціонування чиллер-фанкойл.
  •  Охорона: Територія БЦ і вхідні групи охороняються цілодобово. Діє система контролю доступу. Доступ для орендарів 24 / 7.
  •  Відмінна транспортна розв'язка, в пішій доступності станція метро Контрактова Площа та Поштова Площа, 5 хвилин пішки. 
  •  Паркинг: наземний/підземний.
  •  Фактична площа: 207,0 кв.м.
  •  Орендована площа: 238,05 кв.м. 
  •  Коефіцієнт площ загального користування: 1,15%. 

Орендна ставка: $ 15/м2 з ПДВ.
Експлуатація: $ 4,8/м2 з ПДВ.
Комунальні послуги: 1,66 $/м2.

Метро
Контрактова площа
500 метрів, 6 хв пішки
Поштова площа
800 метрів, 10 хв пішки
Інфраструктура
Банкомат, відділення банку
Відділення Нової Пошти (НП)
Готель
Супермаркет
Хімчистка
Салон краси
Кафе, ресторан

Ще офіси у цьому будинку

Метро
Контрактова площа
500 метрів, 6 хв пішки
Поштова площа
800 метрів, 10 хв пішки
Площа
267.00 м²
Поверх
6
Ціна
$ 21
 Додати в обране
 

Оренда офісного приміщення загальною площею 267 кв.м. БЦ Іллінський, 6 поверх.
Адреса: Подільський район, вул. Іллінська 8. ст.м Контрактова Площа.

Метро
Контрактова площа
500 метрів, 6 хв пішки
Поштова площа
800 метрів, 10 хв пішки
Площа
182.00 м²
Поверх
6
Ціна
$ 22,8
 Додати в обране
 

Оренда офісу 182м² в БЦ Іллінський, Поділ
Адреса: м. Київ, вул. Іллінська, 8, ст.м. Контрактова площа

Основні характеристики:

Метро
Контрактова площа
500 метрів, 6 хв пішки
Поштова площа
800 метрів, 10 хв пішки
Площа
298.00 м²
Поверх
4
Ціна
$ 19,8
 Додати в обране
 

Оренда офісного приміщення загальною площею 298,9 кв.м. БЦ Іллінський, 4 поверх.

Адреса: Подільський район, вул. Іллінська 8. станція метро Контрактова Площа.

Метро
Контрактова площа
500 метрів, 6 хв пішки
Поштова площа
800 метрів, 10 хв пішки
Площа
241.50 м²
Поверх
4
Ціна
$ 19,8
 Додати в обране
 

Оренда офісного приміщення загальною площею 241,5кв.м..

Метро
Контрактова площа
500 метрів, 6 хв пішки
Поштова площа
800 метрів, 10 хв пішки
Площа
242.00 м²
Поверх
4
Ціна
Здано
 Додати в обране
 

Оренда офісного приміщення загальною площею 241,5 кв.м. БЦ Іллінський, 4 поверх.

Адреса: Подільський район, вул. Іллінська 8. станція метро Контрактова Площа.

Метро
Контрактова площа
500 метрів, 6 хв пішки
Поштова площа
800 метрів, 10 хв пішки
Площа
189.00 м²
Поверх
1
Ціна
Здано
 Додати в обране
 

Оренда офісного приміщення загальною площею 189 кв.м. БЦ Іллінський, 6 поверх.

Адреса: Подільський район, вул. Іллінська 8. ст.м Поштова Площа.

Метро
Контрактова площа
500 метрів, 6 хв пішки
Поштова площа
800 метрів, 10 хв пішки
Площа
206.00 м²
Поверх
6
Ціна
Здано
 Додати в обране
 

Оренда офісного приміщення загальною площею 206 кв.м. БЦ Іллінський, 6 поверх.

Адреса: Подільський район, вул. Іллінська 8. ст.м Поштова Площа.

Метро
Контрактова площа
500 метрів, 6 хв пішки
Поштова площа
800 метрів, 10 хв пішки
Площа
154.00 м²
Поверх
3
Ціна
Здано
 Додати в обране
 

Оренда офісного приміщення загальною площею 134,34 кв.м. Офіс розміщений на 3-му поверсі БЦ Іллінський.

Адреса: Подільський район, вул. Іллінська 8. ст.м Поштова Площа.

Метро
Контрактова площа
500 метрів, 6 хв пішки
Поштова площа
800 метрів, 10 хв пішки
Площа
925.00 м²
Поверх
1
Ціна
Здано
 Додати в обране
 

Офіс 673 кв.м. вул. Іллінська, 8
Оренда офісного приміщення загальною площею складає 925 кв.м.

Метро
Контрактова площа
500 метрів, 6 хв пішки
Поштова площа
800 метрів, 10 хв пішки
Площа
1137.00 м²
Поверх
2
Ціна
Здано
 Додати в обране
 

Оренда офісного приміщення загальною площею 1137 кв.м.. 
Офіс розміщений на 2-му поверсі БЦ Іллінський.

Метро
Контрактова площа
500 метрів, 6 хв пішки
Поштова площа
800 метрів, 10 хв пішки
Площа
291.18 м²
Поверх
5
Ціна
Здано
 Додати в обране
 

Оренда офісного приміщення загальною площею 291,18 кв.м. БЦ Іллінський, 5 поверх.

Адреса: Подільський район, вул. Іллінська 8. ст.м Поштова Площа.

Метро
Контрактова площа
500 метрів, 6 хв пішки
Поштова площа
800 метрів, 10 хв пішки
Площа
378.50 м²
Поверх
3
Ціна
Здано
 Додати в обране
 

Оренда офісного приміщення загальною площею 378,5кв.м. Офіс розміщений на 3-му поверсі БЦ Іллінський.

Метро
Контрактова площа
500 метрів, 6 хв пішки
Поштова площа
800 метрів, 10 хв пішки
Площа
300.61 м²
Поверх
6
Ціна
Здано
 Додати в обране
 

Оренда офісного приміщення загальною площею 300,61 кв.м. Офіс розміщений на 6-му поверсі БЦ Іллінський.

Метро
Контрактова площа
500 метрів, 6 хв пішки
Поштова площа
800 метрів, 10 хв пішки
Площа
551.89 м²
Поверх
5
Ціна
Здано
 Додати в обране
 

Оренда офісного приміщення загальною площею 551,89 кв.м. Офіс розміщений на 5-му поверсі БЦ Іллінський.

Метро
Контрактова площа
500 метрів, 6 хв пішки
Поштова площа
800 метрів, 10 хв пішки
Площа
773.00 м²
Поверх
3
Ціна
Здано
 Додати в обране
 

Оренда офісного приміщення загальною площею 773 кв.м. Офіс розміщений на 3-му поверсі БЦ Іллінський.

Метро
Контрактова площа
500 метрів, 6 хв пішки
Поштова площа
800 метрів, 10 хв пішки
Площа
247.37 м²
Поверх
4
Ціна
Здано
 Додати в обране
 

Оренда офісного приміщення загальною площею 247,5 кв.м..  Офіс розміщений на 4-му поверсі БЦ Іллінський.

Метро
Контрактова площа
500 метрів, 6 хв пішки
Поштова площа
800 метрів, 10 хв пішки
Площа
431.00 м²
Поверх
5
Ціна
Здано
 Додати в обране
 

Оренда офісного приміщення загальною площею 431кв.м.

Метро
Контрактова площа
500 метрів, 6 хв пішки
Поштова площа
800 метрів, 10 хв пішки
Площа
116.00 м²
Поверх
1
Ціна
Здано
 Додати в обране
 

Оренда офісного приміщення загальною площею 106,2 кв.м..

Офіс розміщений на 1-му поверсі БЦ Іллінський.

Метро
Контрактова площа
500 метрів, 6 хв пішки
Поштова площа
800 метрів, 10 хв пішки
Площа
212.60 м²
Поверх
1
Ціна
Здано
 Додати в обране
 

Оренда офісного приміщення загальною площею складає 212,6 кв.м..

Офіс розміщений на 1-му та цокольному поверсі БЦ Іллінський.

Метро
Контрактова площа
500 метрів, 6 хв пішки
Поштова площа
800 метрів, 10 хв пішки
Площа
425.50 м²
Поверх
5
Ціна
Здано
 Додати в обране
 

Оренда офісу у центрі Києва, 425,5 кв.м БЦ Іллінськи.

Бізнес-центри поруч

Метро
Контрактова площа
500 метрів, 6 хв пішки
Поштова площа
800 метрів, 10 хв пішки
Площа: 267.00 м²
Поверх: 6
Ціна: $ 21
Площа: 182.00 м²
Поверх: 6
Ціна: $ 22,8
Площа: 238.00 м²
Поверх: 5
Ціна: $ 19,8
Площа: 242.00 м²
Поверх: 4
Ціна: $ 19,8
Всі об'єкти