Skip to main content
District:
Solomensky
Number of bathrooms:
6
Renovation:
Category B
Number of storeys
11
Area
660m²
Floor:
3
Taxation:
Without VAT
Price m²
$ 15

Total:

$ 15
/ m²
$ 9,900
/ month
$ 118,800
/ year

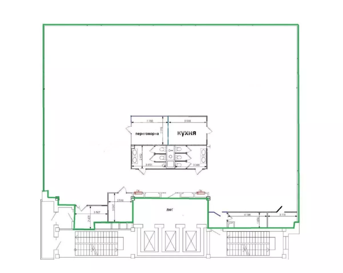
A modern office is offered for rent in the class "B" business center ELEVEN, located in the Solomyansky district on Solomyanskaya Square. The premises are transferred after renovation: all walls have been repainted, new carpeting.
Room characteristics:
Vacant area - 660 m² (3rd floor, taking into account the coefficient of common areas). The office is after major renovation, ready for the tenant to move in.
The premises are equipped with modern engineering systems, including ventilation and air conditioning, which provides comfortable working conditions at any time of the year.
Infrastructure and security:
The business center has 24-hour security, an access control system and is fully equipped with backup power from a generator, which guarantees uninterrupted operation of both the offices and the entire BC infrastructure.
Commercial terms:

  • Rental rate — $15/m² excluding VAT
  • Operating costs — $7/m² excluding VAT
  • Utility payments — according to meter readings
  • Parking — $150/space excluding VAT (20–25 parking spaces available)

The office is ideal for companies that value a convenient location, high-quality infrastructure, and reliable engineering solutions.

Underground
Vokzalna
🚶30 min​. 〰️ 2,5 km
Infrastructure
ATM, bank branch
Nova Poshta
Supermarket
Cleaning
Beauty saloon
Cafe, restaurant

More offices in this building

Underground
Vokzalna
🚶30 min​. 〰️ 2,5 km
Area
1548.00m²
Floor
2
Price
$ 15
 Add to favourites
 

Renting an office in the Eleven business center is an opportunity to place a company in a modern class A office space at the address: Solomyanska St., 11 in the Solomyanskyi district of Kyiv.

Underground
Vokzalna
🚶30 min​. 〰️ 2,5 km
Area
128.00m²
Floor
4
Price
$ 15
 Add to favourites
 

A compact and functional office is offered for rent in the class "B" business center ELEVEN, located on Solomyanskaya Square.

Underground
Vokzalna
🚶30 min​. 〰️ 2,5 km
Area
612.00m²
Floor
3
Price
$ 15
 Add to favourites
 

Eleven Business Center is a modern office complex of class A and B, located at: 11 Solomyanska St. in Solomyanskyi district, Kyiv.

Underground
Vokzalna
🚶30 min​. 〰️ 2,5 km
Area
325.00m²
Floor
4
Price
$ 15
 Add to favourites
 

Office for rent 325 m² in the ELEVEN business center, Solomiansky district (Kyiv)

Underground
Vokzalna
🚶30 min​. 〰️ 2,5 km
Area
782.00m²
Floor
4
Price
$ 15
 Add to favourites
 

Office for rent 782 m² in the ELEVEN business center, Solomiansky district (Kyiv)

Underground
Vokzalna
🚶30 min​. 〰️ 2,5 km
Area
1298.00m²
Floor
10
Price
$ 25
 Add to favourites
 

Renting an office in the Eleven business center is an opportunity to place a company in a modern class A office space at the address: Solomyanska St., 11 in the Solomyanskyi district of Kyiv.

Underground
Vokzalna
🚶30 min​. 〰️ 2,5 km
Area
653.00m²
Floor
4
Price
Leased
 Add to favourites
 
  • Office for rent with an area of ​​653 square meters in the Eleven Business Center, 11 Solomyanska Street.

BC Eleven is a modern B+ class business center located in Solomyansky

Underground
Vokzalna
🚶30 min​. 〰️ 2,5 km
Area
476.00m²
Floor
8
Price
Leased
 Add to favourites
 

Office for rent with an area of ​​476 square meters in the Eleven Business Center, 11 Solomyanska Street.

Business centers nearby

Underground
Vokzalna
🚶30 min​. 〰️ 2,5 km
Square: 1548.00m²
Floor: 2
Price: $ 15
Square: 128.00m²
Floor: 4
Price: $ 15
Square: 612.00m²
Floor: 3
Price: $ 15
Square: 325.00m²
Floor: 4
Price: $ 15
All objects